302 Hiram Walker Court Unit# 103, Kelowna, British Columbia V4V 1E6

Listed for:
$16
0 beds
0 baths
Listed 35 days ago
Other for rent: 302 Hiram Walker Court Unit# 103, Kelowna, British Columbia V4V 1E6

View all 28 photos

Learn more about this property
Listing provided by:
Coldwell Banker Executives Realty
MLS® number:
10339145
Agent:
Bert Ter Horst
*Indicates required field
Name is required
Email is required
Please enter a valid phone number (e.g., 416-111-1111).

About

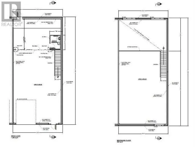
This unit is a Concrete Industrial Strata Unit in the Jim Bailey Road area of Kelowna. This unit is 1,560sf plus 600 sf Mezzanine with20 foot ceiling heights, and has a 12 x 14 bay door and store front and is ideal for small to medium size businesses (id:27476)

Property Highlights

MLS® Number
10339145
Type
Industrial
Land Size
under 1 acre

Building

Building Type
Other
Square Footage
2160 sqft
Amenities
Airport
Exterior Finish
Concrete
Fireplace Present
No
Basement Type
Basement Features
Building Heating Type
Overhead Heaters, See remarks
Heating Fuel
Building Cooling Type

Utilities

Water
Municipal water
Utility Sewer
Municipal sewage system

Location