4495 Walker Road Unit# 1, Kelowna, British Columbia V1W 1G8

Listed for:
$1,799,000
5 beds
5 baths
Listed 59 days ago
Row / Townhouse for rent: 4495 Walker Road Unit# 1, Kelowna, British Columbia V1W 1G8

View all 26 photos

Learn more about this property
Listing provided by:
RE/MAX Kelowna
MLS® number:
10355660
Agent:
Wes Jones
*Indicates required field
Name is required
Email is required
Please enter a valid phone number (e.g., 416-111-1111).

About

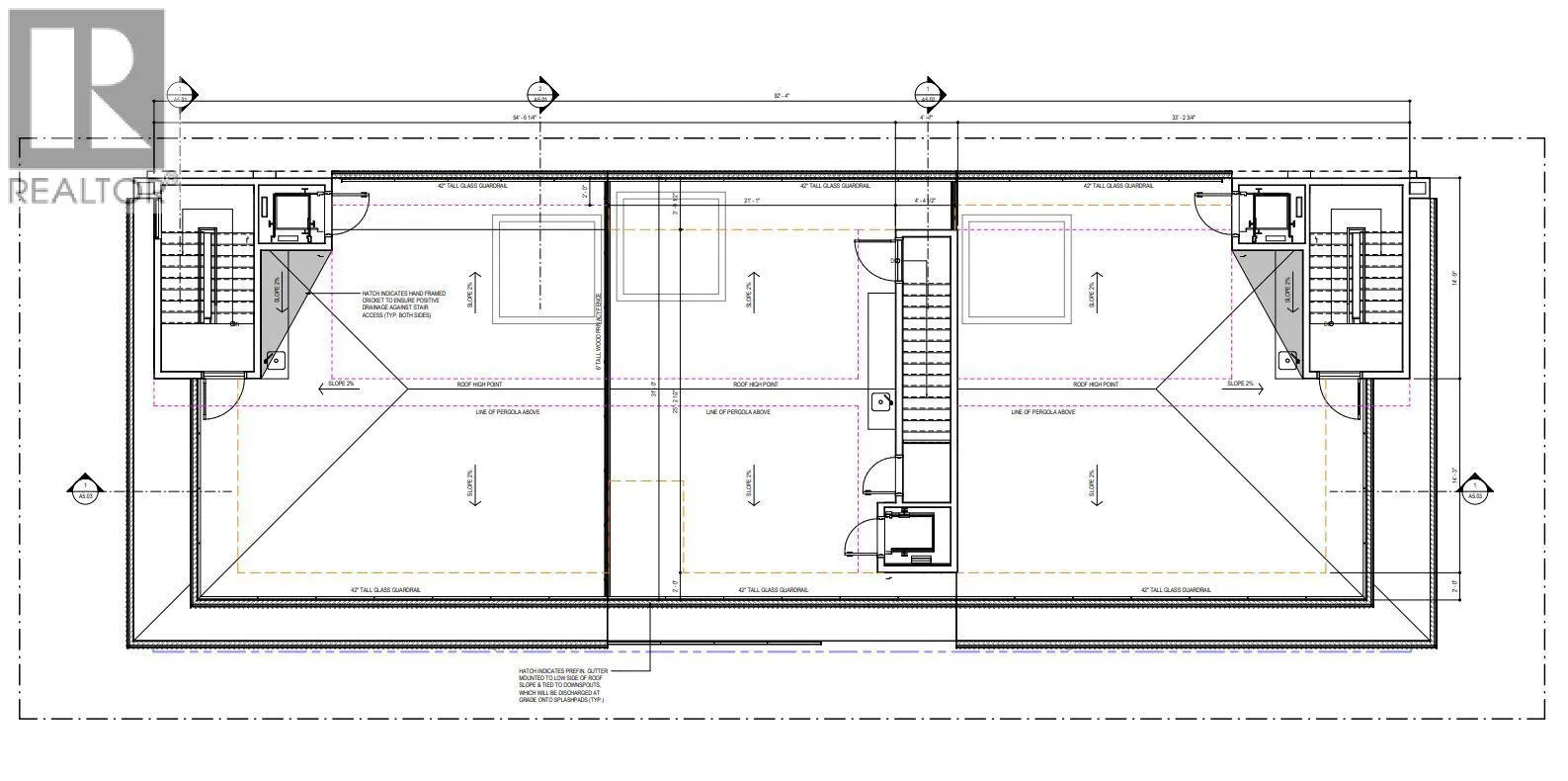
Introducing the pinnacle of luxury living!! This brand-new, spacious high-end townhome boasts 5 bedrooms, 5 bathrooms PLUS roof top deck! 3 floors of top quality finishing, every detail has been meticulously crafted. The gourmet kitchen boasts granite countertops, stainless steel appliances and island, ideal for entertaining. Exposed beams create a unique architectural statement by blending rustic charm with modern living. Gather with your guests on the roof top deck with easy access by elevator from the main floor right to the top. Take in the breathtaking lake, mountain and city view! Have your family bedrooms together on the 3rd floor. The primary bedroom includes a generous size ensuite with double vanity, custom tile shower and walk in closet. 2 additional bedrooms and 1 bathroom. Level 1 and 2 have additional flex/bedrooms and bathrooms ready for the extra guests or use the space for yourself! Additional features include laundry on the main floor, built-in Sonos speakers throughout the home and bar sink on the roof top deck. Take a short stroll to the lake and beautiful Sarsons Beach Park where you can bring your kayak, paddle board or just soak up the sun-kissed lake life. Located in the sought after Lower Mission area close to shops, restaurants, breweries and multiple outdoor trails, this stunning townhome is situated in a prime location! Buy now and personalize your dream home with your choice of finishing. Plus GST (id:27476)

Property Highlights

MLS® Number
10355660
Type
Single Family
Community Name
Walk On Water
Maintenance Fee
0.00
Ownership Type
Strata
Land Size
under 1 acre
Parking Space Total
2

Building

Building Type
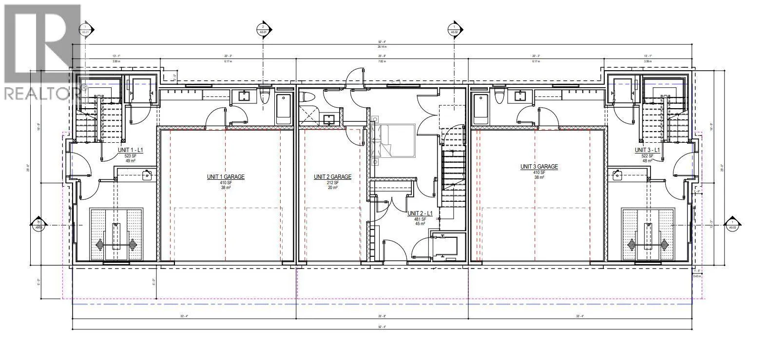
Row / Townhouse
Storeys
3.00
Square Footage
2239 sqft
Bathrooms Total
5
Bedrooms Total
5
Fireplace Present
Yes
Basement Type
Basement Features
Building Heating Type
Heat Pump
Heating Fuel
Other
Building Cooling Type
Heat Pump

Utilities

Water
Municipal water
Utility Sewer
Municipal sewage system

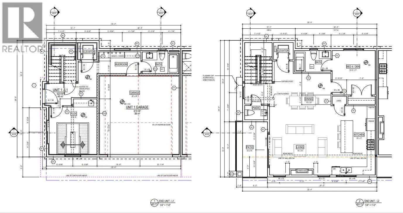
Room Layout

2pc Bathroom
Second level
Measurements not available
Full bathroom
Second level
Measurements not available
Bedroom
Second level
11' x 10'6''
Kitchen
Second level
17' x 10'
Dining room
Second level
15' x 10'
Living room
Second level
15' x 15'
Full bathroom
Third level
Measurements not available
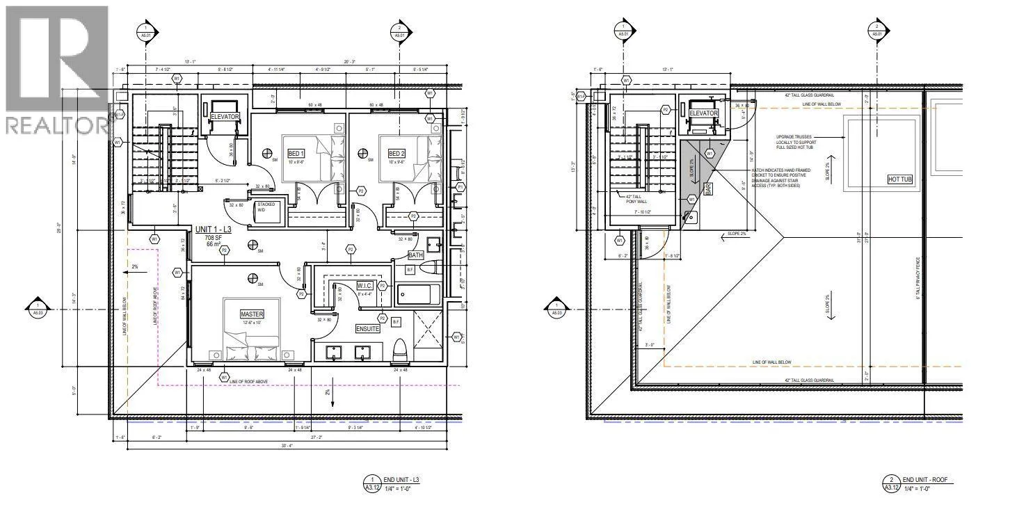
Bedroom
Third level
10' x 9'6''
Bedroom
Third level
10' x 9'6''
Full ensuite bathroom
Third level
Measurements not available
Primary Bedroom
Third level
12'6'' x 10'
Full bathroom
Main level
Measurements not available
Bedroom
Main level
12' x 12'

Location

Street Spotlight - For sale