1751 Harvey Avenue Unit# 200, Kelowna, British Columbia V1Y 6G4

Listed for:
$21
0 beds
0 baths
Listed 15 days ago
Residential Commercial Mix for rent: 1751 Harvey Avenue Unit# 200, Kelowna, British Columbia V1Y 6G4

View all 11 photos

Learn more about this property
Listing provided by:
Venture Realty Corp.
MLS® number:
10360907
Agent:
Sol Benson
*Indicates required field
Name is required
Email is required
Please enter a valid phone number (e.g., 416-111-1111).

About

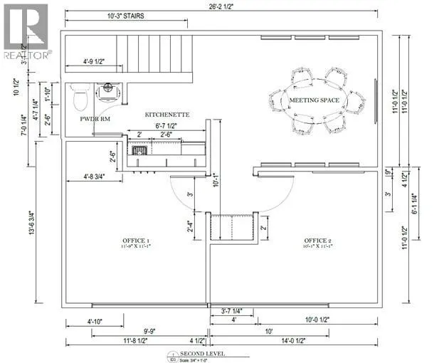
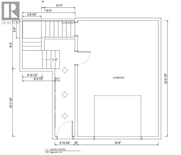
Unique opportunity to lease centrally located office space in the Landmark corridor. The second floor of this well finished 1,053 square foot unit includes 2 private offices, an open work area/boardroom, kitchenette, and bathroom. There is an overhead door at the main level which can be used for equipment storage or parking. (id:27476)

Property Highlights

MLS® Number
10360907
Type
Other
Land Size
under 1 acre

Building

Building Type
Residential Commercial Mix
Square Footage
1053 sqft
Fireplace Present
No
Basement Type
Basement Features
Building Heating Type
Heating Fuel
Building Cooling Type

Location