1415 Highland Drive S, Kelowna, British Columbia V1Y 3W3

Listed for:
$849,000
3 beds
2 baths
Listed 95 days ago
House for rent: 1415 Highland Drive S, Kelowna, British Columbia V1Y 3W3

View all 57 photos

About

Updated family home with a self contained mortgage helper in a quiet neighbourhood. Gorgeous vaulted architechture with tongue in groove finishing makes this a unique home - airy and open. Three bedrooms up including a primary with cheater ensuite. Great room plan with open kitchen/dining/living room area. Huge bonus/ flex room with cozy gas fireplace overlooking the back yard; perfect for a family room, home office, or gym. Studio suite down that could be a one bedroom or reopened to the main home if preferred. Large, grassy, fenced back yard. Private, partially covered deck with mountain views. Carport, loads of parking. 10 x 15 secure, dry, under-deck shop/storage. MF1 zoning. Walking distance to parks, schools, transit and downtown! Perfect for a family, investor, or both! (id:27476)

Property Highlights

MLS® Number
10365215
Type
Single Family
Ownership Type
Freehold
Land Size
0.17 ac|under 1 acre
Parking Space Total
5

Building

Building Type
House
Storeys
2.00
Square Footage
2272 sqft
Bathrooms Total
2
Bedrooms Total
3
Exterior Finish
Stucco, Wood siding
Fireplace Present
Yes
Basement Type
Full
Basement Features
Building Heating Type
Forced air, See remarks
Heating Fuel
Building Cooling Type
Central air conditioning

Utilities

Water
Municipal water
Utility Sewer
Municipal sewage system

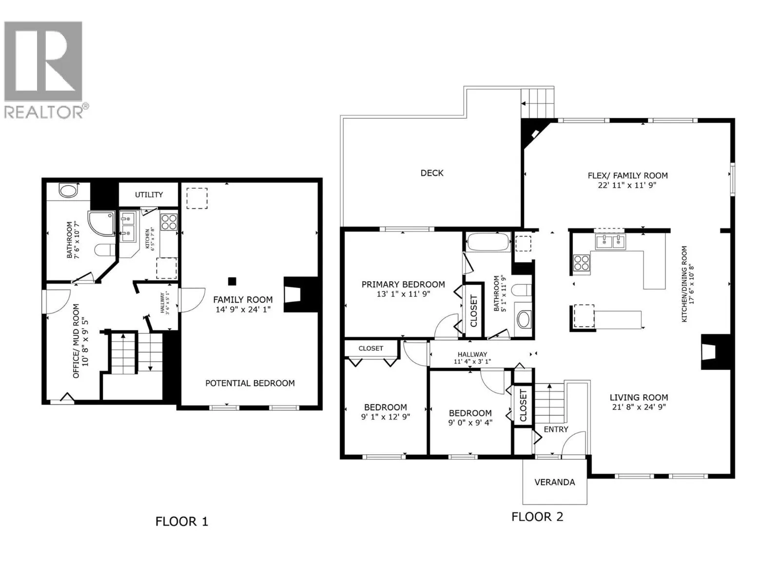
Room Layout

Kitchen
Basement
6'5'' x 7'8''
Other
Basement
10'8'' x 9'5''
Full bathroom
Basement
6'5'' x 7'8''
Family room
Basement
14'9'' x 24'1''
Full bathroom
Main level
5'1'' x 11'9''
Bedroom
Main level
9'4'' x 9'0''
Bedroom
Main level
12'9'' x 9'1''
Primary Bedroom
Main level
13'1'' x 11'9''
Other
Main level
22'11'' x 11'9''
Living room
Main level
21'8'' x 24'9''
Kitchen
Main level
10'8'' x 17'6''

Location

Learn more about this property
Listing provided by:
Century 21 Assurance Realty Ltd
MLS® number:
10365215
Agent:
Maureen Yakimchuk
*Indicates required field
Name is required
Email is required
Please enter a valid phone number (e.g., 416-111-1111).