1550 Union Road Unit# 46, Kelowna, British Columbia V1V 2W4

Listed for:
$1,079,900
3 beds
3 baths
Listed 104 days ago
Row / Townhouse for rent: 1550 Union Road Unit# 46, Kelowna, British Columbia V1V 2W4

View all 56 photos

About

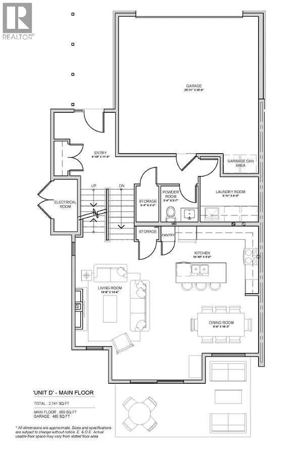
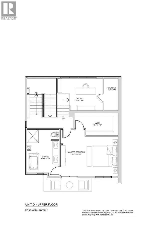
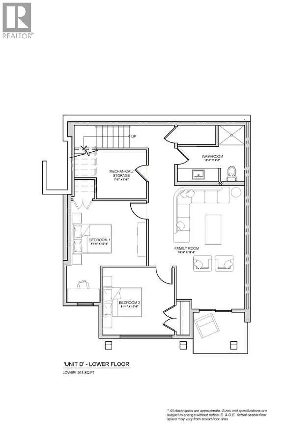
For more information, please click Brochure button. Discover Unit 46 – NO Strata Fees for One Year! Priced below assessed value! The Elderberry Plan at Wilden’s Pondside Landing, a stunning corner townhouse offering 2,741 sq. ft. of bright, contemporary living in the Warm Nordic colour scheme. This home is the last available corner unit with the GST incentive, featuring direct water views and exceptional natural light throughout. The split-level design provides a spacious and functional layout with 3 bedrooms, 3 bathrooms, and a study. Enjoy three outdoor living areas—a large deck off the main level, a private balcony off the primary suite with a 5-piece ensuite and walk-in closet, and a covered patio extending from the walkout basement. The main floor showcases an open living area with a gas fireplace, while the lower level includes two bright bedrooms and a family room opening to the patio. A side-by-side double garage connects conveniently to a well-designed laundry room. Ceiling heights range from 9' in the basement, 10' on the main floor, 8' in the upper bedroom, and up to 11' in the study, enhancing the home’s sense of openness and light. Located just 10 minutes from downtown Kelowna and the airport, Pondside Landing offers a peaceful yet connected lifestyle, surrounded by trails, ponds, and future amenities like Wilden Market Square and Wilden Elementary School. All measurements are approximate. (id:27476)

Property Highlights

MLS® Number
10367184
Type
Single Family
Community Name
Pondside Landing
Maintenance Fee
385.33
Ownership Type
Strata
Land Size
0.03 ac|under 1 acre
Parking Space Total
2

Building

Building Type
Row / Townhouse
Storeys
3.00
Square Footage
2740 sqft
Bathrooms Total
3
Bedrooms Total
3
Exterior Finish
Concrete Block, Stone, Stucco
Fireplace Present
Yes
Basement Type
Basement Features
Building Heating Type
Heat Pump
Heating Fuel
Geo Thermal
Building Cooling Type
See Remarks

Utilities

Water
Municipal water
Utility Sewer
Municipal sewage system

Room Layout

Primary Bedroom
Second level
17'7'' x 11'11''
5pc Ensuite bath
Second level
Measurements not available
Loft
Second level
11'6'' x 9'8''
Storage
Second level
4'4'' x 9'8''
Utility room
Lower level
7'8'' x 7'6''
3pc Bathroom
Lower level
Measurements not available
Family room
Lower level
10'9'' x 19'0''
Bedroom
Lower level
11'1'' x 10'4''
Bedroom
Lower level
11'6'' x 10'4''
Kitchen
Main level
14'10'' x 8'6''
Living room
Main level
19'0'' x 14'0''
Dining room
Main level
8'8'' x 10'3''
Laundry room
Main level
8'11'' x 6'9''
2pc Bathroom
Main level
Measurements not available
Storage
Main level
5'4'' x 5'7''

Location

Learn more about this property
Listing provided by:
Easy List Realty
MLS® number:
10367184
Agent:
Darya Pfund
*Indicates required field
Name is required
Email is required
Please enter a valid phone number (e.g., 416-111-1111).

Street Spotlight - For sale