315 Primrose Road Unit# 217, Kelowna, British Columbia V1X 2G6

Listed for:
$524,900
4 beds
2 baths
Listed 16 days ago
Row / Townhouse for rent: 315 Primrose Road Unit# 217, Kelowna, British Columbia V1X 2G6

View all 47 photos

Learn more about this property
Listing provided by:
Century 21 Assurance Realty Ltd
MLS® number:
10367245
Agent:
Seth Cowie
*Indicates required field
Name is required
Email is required
Please enter a valid phone number (e.g., 416-111-1111).

About

Discover this stunning Kelowna townhome featuring 4 bedrooms and 2 bathrooms. The open floor plan boasts modern updates throughout, creating a bright and inviting atmosphere. Enjoy the convenience of 2 parking spots, including 1 covered, along with an 8x4 storage unit for added storage needs. Situated in a well-managed strata within a beautifully landscaped complex, this move-in-ready residence offers the perfect blend of comfort and luxury. Within walking distance, incredible amenities include the YMCA, soccer fields, baseball diamonds, two Ice rinks, and the best BMX track in the central Okanagan. Don’t miss out—book your showing today! (id:27476)

Property Highlights

MLS® Number
10367245
Type
Single Family
Community Name
Rose Wood Estates
Maintenance Fee
545.00
Ownership Type
Strata
Land Size
under 1 acre
Parking Space Total
2

Building

Building Type
Row / Townhouse
Storeys
2.00
Square Footage
1841 sqft
Bathrooms Total
2
Bedrooms Total
4
Amenities
Park, Recreation, Shopping
Exterior Finish
Stucco
Fireplace Present
Yes
Basement Type
Full
Basement Features
Building Heating Type
Heating Fuel
Electric
Building Cooling Type
Wall unit

Utilities

Water
Municipal water
Utility Sewer
Municipal sewage system

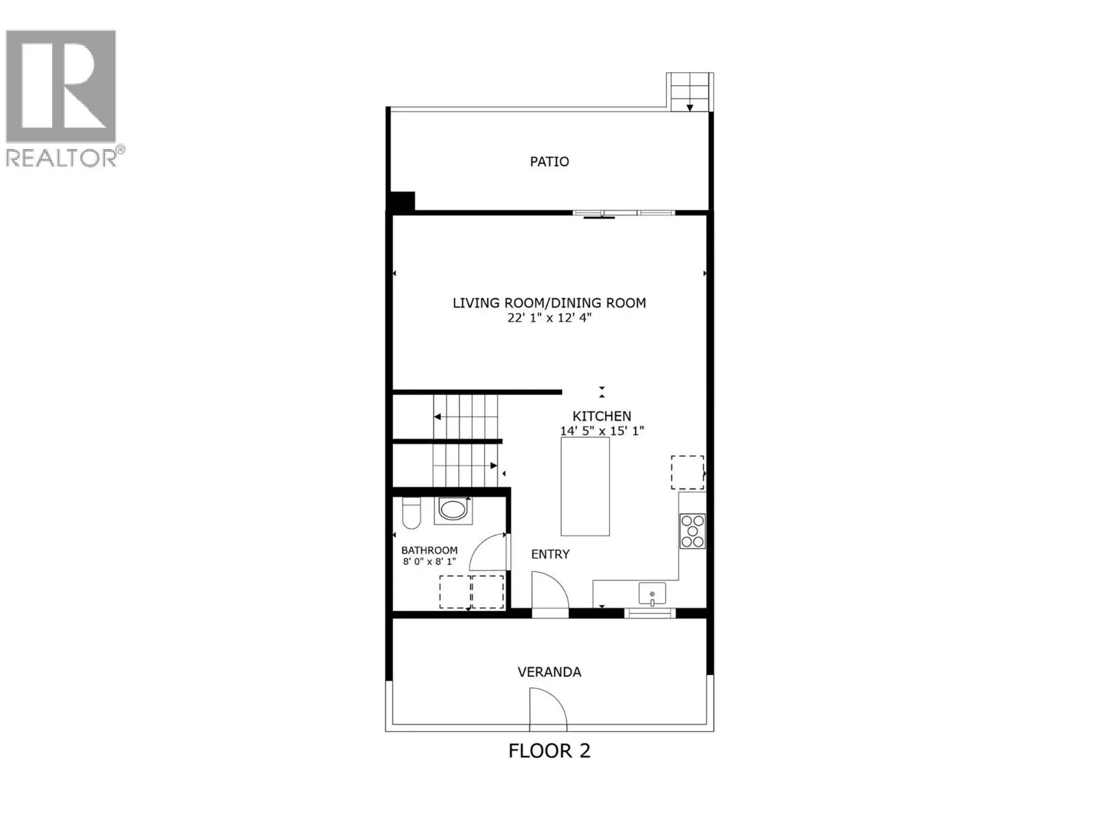
Room Layout

Bedroom
Second level
10'1'' x 12'
Bedroom
Second level
10'7'' x 12'4''
3pc Bathroom
Second level
8'0'' x 8'1''
Primary Bedroom
Second level
11'3'' x 15'8''
Bedroom
Basement
12'8'' x 12'4''
Partial bathroom
Main level
8' x 8'
Living room
Main level
22'1'' x 12'4''
Kitchen
Main level
15'1'' x 14'5''

Location