8900 Jim Bailey Road Unit# 112, Kelowna, British Columbia V4V 1E5

Listed for:
$453,800
3 beds
2 baths
Listed 79 days ago
Manufactured Home for rent: 8900 Jim Bailey Road Unit# 112, Kelowna, British Columbia V4V 1E5

View all 30 photos

About

Welcome to Deer Meadows. Your new neighbourhood is conveniently located just steps away from the Rail Trial where you are connected to Wood lake and the blue waters of Kalamalka lake with trail access spanning from Vernon to Kelowna. Deer Meadows is a quick 10 minute commute from the Airport and UBCO's Campus. Rentals and pets are allowed. This Skylark home is built by Woodland Crafted Homes and features a modern layout. With a unique exterior, the 3 bedroom, 2 bathroom home design is created for those that want it all. Entering to the open-concept Kitchen, you walk through a bright front patio and are met with the highly coveted seamless living/dining space. Guest room and spacious Master Bedroom at the back of the house means optimized space distribution. Base price comes with a carport and may be upgraded to a garage. The secluded Backyard Patio opens off the beautiful Master Bedroom to ensure these homeowners get every bit of sunshine that the Okanagan has to offer. SHORT TERM RENTALS PERMITTED. Schedule your appointment today! (id:27476)

Property Highlights

MLS® Number
10370255
Type
Single Family
Maintenance Fee
575.00
Land Size
under 1 acre
Parking Space Total
2

Building

Building Type
Manufactured Home
Storeys
1.00
Square Footage
1356 sqft
Bathrooms Total
2
Bedrooms Total
3
Exterior Finish
Stone, Stucco
Fireplace Present
No
Basement Type
Basement Features
Building Heating Type
See remarks
Heating Fuel
Building Cooling Type
Central air conditioning

Utilities

Water
Well
Utility Sewer
Septic tank

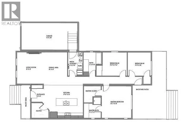
Room Layout

3pc Ensuite bath
Main level
7' x 7'6''
Primary Bedroom
Main level
12'2'' x 13'
Bedroom
Main level
9'6'' x 13'
Bedroom
Main level
9'8'' x 10'
4pc Bathroom
Main level
5' x 9'8''
Laundry room
Main level
6' x 9'8''
Dining room
Main level
10' x 13'
Living room
Main level
12' x 13'
Kitchen
Main level
17' x 13'
Foyer
Main level
5' x 5'

Location

Learn more about this property
Listing provided by:
RE/MAX Kelowna
MLS® number:
10370255
Agent:
Keith Watts
*Indicates required field
Name is required
Email is required
Please enter a valid phone number (e.g., 416-111-1111).

Street Spotlight - For sale