2202 Tramonto Court, Kelowna, British Columbia V1P 1V1

Listed for:
$1,599,900
6 beds
5 baths
Listed 37 days ago
House for rent: 2202 Tramonto Court, Kelowna, British Columbia V1P 1V1

View all 51 photos

About

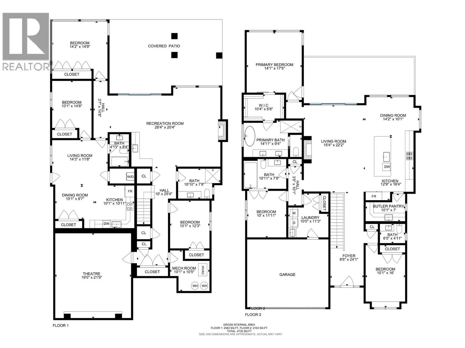
You are going to love the view from this beautifully designed walkout rancher in the sought-after Kirschner Mountain area. Offering 6 bedrooms and 5 bathrooms over 4,200 square feet, this home blends modern luxury with stunning lake and city views. Enjoy the breathtaking scenery the moment you walk inside. The main level features 3 bedrooms, 2 full bathrooms, and a half bath with in-floor heating. Highlights include high ceilings, a gas fireplace, hardwood floors, and an open-concept kitchen with stainless steel KitchenAid appliances. A large sundeck extends the living space outdoors, making it perfect for entertaining. The lower level includes 2 additional bedrooms, a full bathroom, a spacious rec room with a wet bar, and a fantastic soundproofed media room—ideal for sports and movie enthusiasts. There’s also a legal 1-bedroom suite with a private entrance and separate utilities, perfect for rental income or extended family. Additional features include central air conditioning, forced air and baseboard heating (electric and natural gas), a built-in vacuum, and a complete security system with surveillance cameras. The 0.24-acre lot offers a private yard with underground sprinklers and space for a pool. An attached double garage provides ample parking and storage. This is a high-quality home in a quiet, family-friendly neighborhood—ideal for comfortable living and entertaining. (id:27476)

Property Highlights

MLS® Number
10372405
Type
Single Family
Ownership Type
Freehold
Land Size
0.24 ac|under 1 acre
Parking Space Total
5

Building

Building Type
House
Storeys
2.00
Square Footage
4288 sqft
Bathrooms Total
5
Bedrooms Total
6
Exterior Finish
Stone, Stucco
Fireplace Present
Yes
Basement Type
Full
Basement Features
Building Heating Type
Baseboard heaters, Forced air, See remarks
Heating Fuel
Electric
Building Cooling Type
Central air conditioning

Utilities

Water
Irrigation District
Utility Sewer
Municipal sewage system

Room Layout

Full bathroom
Second level
Measurements not available
Full bathroom
Basement
Measurements not available
Primary Bedroom
Basement
12'9'' x 13'2''
Bedroom
Lower level
12'4'' x 9'8''
Bedroom
Main level
12'1'' x 11'4''
Bedroom
Main level
11'3'' x 13'8''
Living room
Main level
12' x 12'
Kitchen
Main level
8' x 11'
5pc Ensuite bath
Main level
8'10'' x 15'0''
Primary Bedroom
Main level
15'6'' x 14'0''
4pc Bathroom
Main level
5'0'' x 10'0''
Bedroom
Main level
12'0'' x 10'0''
Mud room
Main level
11'0'' x 10'0''
Great room
Main level
22'0'' x 15'6''
Dining room
Main level
11'6'' x 12'0''
Kitchen
Main level
14'8'' x 12'0''
Full bathroom
Main level
5'0'' x 7'0''
Den
Main level
12'0'' x 10'0''
Foyer
Main level
8'0'' x 9'0''

Location

Learn more about this property
Listing provided by:
Royal LePage Kelowna
MLS® number:
10372405
Agent:
Geoff Hays
*Indicates required field
Name is required
Email is required
Please enter a valid phone number (e.g., 416-111-1111).