4450 Postill Drive Unit# 9, Kelowna, British Columbia V1X 7T9

Listed for:
$760,000
4 beds
3 baths
Listed 10 days ago
House for rent: 4450 Postill Drive Unit# 9, Kelowna, British Columbia V1X 7T9

View all 46 photos

About

FANTASTIC FAMILY HOME in the highly desirable Country Rhodes community in Ellison! This well-maintained 4-bedroom, 3 full-bathroom home offers a great layout and is ideally located in the upper portion of the neighbourhood on a quiet no-thru street. The bright kitchen features ample cabinetry and counter space, a large walk-in pantry, and stainless steel appliances including an induction range. French doors lead to the back patio and yard with beautiful views of the privately owned ALR hillside providing an incredible space for entertaining. A separate dining room opens to the inviting living room with a cozy gas fireplace and charming barn door detail. The main floor also includes a spacious primary bedroom with a 4-piece ensuite and walk-in closet, plus two additional bedrooms and another full 4-piece bathroom. Downstairs offers a large family room, generous fourth bedroom, full 3-piece bath with glass shower, and a huge laundry room with closet and window that could convert to a fifth bedroom. Enjoy the large, flat, fully fenced and irrigated yard, OVERSIZED DOUBLE GARAGE, and ample parking. Roof replaced in 2023 and furnace replaced in 2022. Low $180/month strata includes park, playground, hall, pool, water, garbage, snow removal, and RV storage. Close to schools, shopping, UBCO, airport and more. 2 Pets welcome with no size restrictions! (id:27476)

Property Highlights

MLS® Number
10376235
Type
Single Family
Community Name
Country Rhodes
Maintenance Fee
180.00
Ownership Type
Bare Land Condo/Strata
Land Size
0.15 ac|under 1 acre
Parking Space Total
5

Building

Building Type
House
Storeys
1.00
Square Footage
2336 sqft
Bathrooms Total
3
Bedrooms Total
4
Amenities
Clubhouse Golf Nearby, Airport, Park, Schools, Shopping
Exterior Finish
Vinyl siding
Fireplace Present
Yes
Basement Type
Full
Basement Features
Building Heating Type
Forced air, See remarks
Heating Fuel
Building Cooling Type
Central air conditioning

Utilities

Water
Municipal water
Utility Sewer
Municipal sewage system

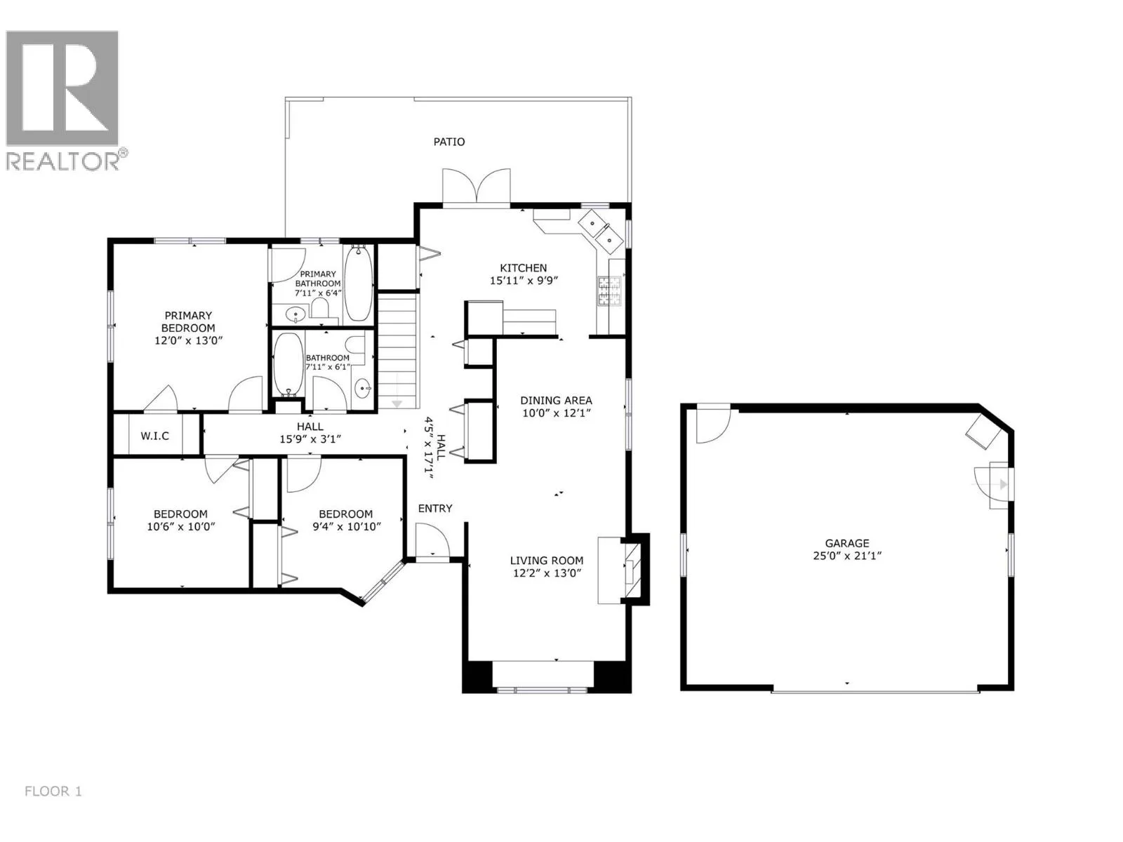
Room Layout

Laundry room
Basement
13'8'' x 12'9''
3pc Bathroom
Basement
10'9'' x 6'9''
Bedroom
Basement
13'8'' x 12'9''
Family room
Basement
26'1'' x 15'0''
Full bathroom
Main level
7'11'' x 6'1''
Bedroom
Main level
10'10'' x 9'4''
Bedroom
Main level
10'6'' x 10'0''
3pc Ensuite bath
Main level
7'1'' x 6'4''
Primary Bedroom
Main level
13'0'' x 12'0''
Kitchen
Main level
15'11'' x 9'9''
Dining room
Main level
12'1'' x 10'0''
Living room
Main level
13'0'' x 12'2''

Location

Learn more about this property
Listing provided by:
Century 21 Assurance Realty Ltd
MLS® number:
10376235
Agent:
Terri Ann Novello
*Indicates required field
Name is required
Email is required
Please enter a valid phone number (e.g., 416-111-1111).

Street Spotlight - For sale