751 + 753 Martin Avenue N, Kelowna, British Columbia V1Y 6V4

Listed for:
$1,459,000
5 beds
4 baths
Listed 30 days ago
House for rent: 751 + 753 Martin Avenue N, Kelowna, British Columbia V1Y 6V4

View all 45 photos

About

A major investment opportunity in the heart of Kelowna!! A prime location house & carriage house with AMAZING income potential on a MF1 Zoning. This property offers a main house with 3 beds + 1 bath with a 2 bed 2 1/2 bath carriage house. Main house was fully renovated in 2009 and offers a fully open concept with a large kitchen boasting a large quartz island w/ eating bar and with tons of storage space, stainless appliances, cork flooring & tile, 3 ample sized bedrooms, a bath with dbl. sinks, main floor laundry with durable rubber flooring, and tons of storage in partial basement. Built in 2011, the carriage house also offers an open floor plan with 2 beds each offering a 4 piece ensuite bath, a large kitchen with island and tons of storage and stainless appliances, polished concrete flooring throughout, and 9’ ceilings. Exterior features include large patio space for front house and 2 patios included in the carriage house, a shed with storage for both units, and a large driveway off the rear lane. Both units include high efficiency heating/AC with on-demand HWT for front house. Property was developed to separate the exterior spaces for both house & carriage house for complete privacy. Close to all downtown amenities steps away from groceries and under 10 minute walk to the water front. (id:27476)

Property Highlights

MLS® Number
10376138
Type
Single Family
Ownership Type
Freehold
Land Size
0.16 ac|under 1 acre
Parking Space Total
3

Building

Building Type
House
Storeys
1.00
Square Footage
1276 sqft
Bathrooms Total
4
Bedrooms Total
5
Amenities
Park, Recreation, Schools, Shopping
Exterior Finish
Stucco
Fireplace Present
No
Basement Type
Partial
Basement Features
Building Heating Type
Forced air, See remarks
Heating Fuel
Building Cooling Type
Central air conditioning

Utilities

Water
Municipal water
Utility Sewer
Municipal sewage system

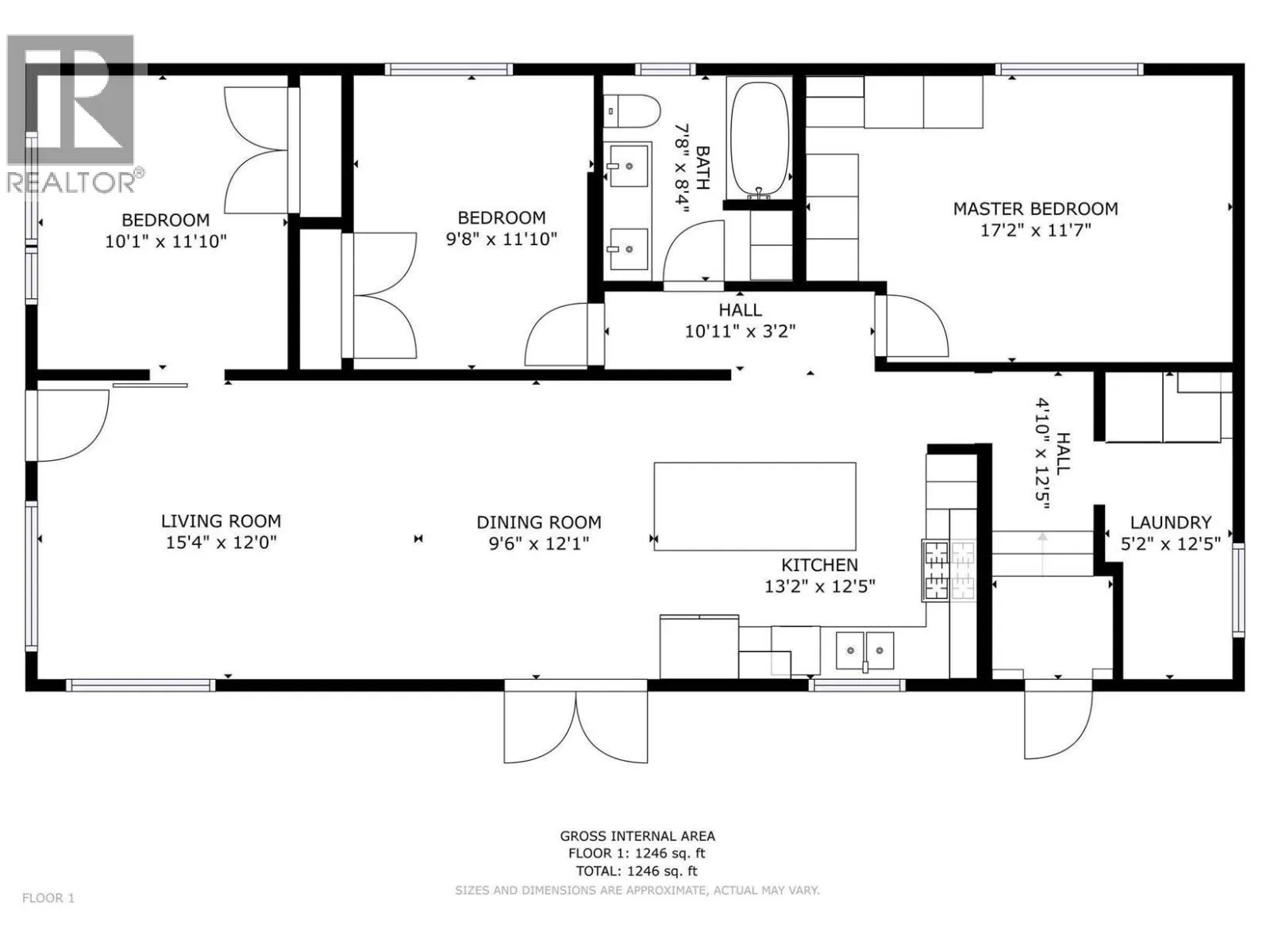
Room Layout

Storage
Second level
28'0'' x 12'0''
2pc Ensuite bath
Main level
7'10'' x 4'11''
3pc Ensuite bath
Main level
8'0'' x 5'0''
Bedroom
Main level
10'7'' x 9'0''
3pc Ensuite bath
Main level
8'1'' x 4'11''
Bedroom
Main level
10'9'' x 9'7''
Kitchen
Main level
16'0'' x 8'9''
Living room
Main level
12'8'' x 11'9''
Laundry room
Main level
12'5'' x 5'2''
4pc Bathroom
Main level
7'8'' x 8'4''
Bedroom
Main level
11'10'' x 10'1''
Bedroom
Main level
11'0'' x 9'8''
Primary Bedroom
Main level
17'2'' x 11'7''
Dining room
Main level
9'6'' x 12'1''
Kitchen
Main level
13'2'' x 12'5''
Living room
Main level
15'4'' x 12'0''

Location

Learn more about this property
Listing provided by:
Oakwyn Realty Okanagan
MLS® number:
10376138
Agent:
Cheryl Bobbie
*Indicates required field
Name is required
Email is required
Please enter a valid phone number (e.g., 416-111-1111).

Street Spotlight - For sale