6833 Madrid Way Unit# 348 Lot# 348, Kelowna, British Columbia V1Z 3R8

Listed for:
$575,000
2 beds
2 baths
Listed 62 days ago
House for rent: 6833 Madrid Way Unit# 348 Lot# 348, Kelowna, British Columbia V1Z 3R8

View all 64 photos

About

OPEN HOUSE SATURDAY MARCH 21, 12:00-2:00 PM. Experience the quintessential Okanagan lifestyle in this stunning, newer walk-out rancher perfectly positioned within the highly sought-after La Casa Lakeside Resort. Designed for effortless comfort and versatility, the bright, open-concept layout features a main-floor primary suite and bathroom. The large kitchen, dining, and living areas are designed for effortless entertaining and flooded with natural light. Downstairs you will find a flexible den easily converted into a third bedroom or home office, along with another bedroom and bathroom. This home is thoughtfully equipped, boasting a single garage with an EV CHARGER and a home already pre-wired for a GENERATOR. New Home Warranty still applies. This is a great revenue property, or the perfect lakeside cottage for family, while the location offers some of the best lakeside amenities in the Okanagan; private beach access, 100-slip marina with boat launch, an Aqua Park for the kids, 2 pools and 3 luxury hot tubs, an 18-hole mini-golf course, tennis and pickleball courts, beach volleyball, a children's playground, miles of surrounding hiking, biking, and ATV trails, a dedicated dog beach, a general store, restaurant, and private security for the ultimate gated experience. With short-term rentals allowed, this property represents both a premier vacation retreat and a savvy investment opportunity in one of the region’s most vibrant lakeside communities. Quick possession possible. (id:27476)

Property Highlights

MLS® Number
10377625
Type
Single Family
Community Name
La Casa Lakeside Resort
Maintenance Fee
437.90
Ownership Type
Bare Land Condo/Strata
Land Size
0.06 ac|under 1 acre
Parking Space Total
1

Building

Building Type
House
Storeys
2.00
Square Footage
1070 sqft
Bathrooms Total
2
Bedrooms Total
2
Fireplace Present
Yes
Basement Type
Basement Features
Building Heating Type
Forced air
Heating Fuel
Building Cooling Type
Central air conditioning

Utilities

Water
Community Water User's Utility
Utility Sewer
Municipal sewage system, Septic tank

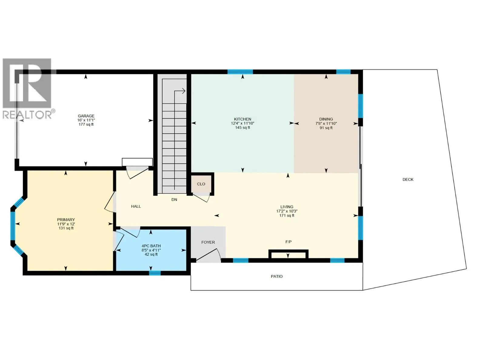
Room Layout

Den
Lower level
12' x 9'
Office
Lower level
8' x 9'
Bedroom
Lower level
10' x 11'
Full bathroom
Lower level
9' x 5'
Full bathroom
Main level
8' x 5'
Primary Bedroom
Main level
12' x 12'
Living room
Main level
17' x 10'
Kitchen
Main level
12' x 12'

Location

Learn more about this property
Listing provided by:
Royal LePage Kelowna
MLS® number:
10377625
Agent:
Mark Lockwood
*Indicates required field
Name is required
Email is required
Please enter a valid phone number (e.g., 416-111-1111).

Street Spotlight - For sale