3416 Scott Road Unit# 14, Kelowna, British Columbia V1W 3H3

Listed for:
$715,000
3 beds
3 baths
Listed 9 days ago
Row / Townhouse for rent: 3416 Scott Road Unit# 14, Kelowna, British Columbia V1W 3H3

View all 35 photos

About

Welcome to Gyro Beach Townhomes- located steps to the beach, grocery stores, eateries, coffee shops, retail stores, liquor stores, medical clinics, banks, and so much more; this location is genuinely hard to beat for the price! Key features include 3 bedrooms plus an open air den, 2.5 baths, double car heated garage with additional space for storage, covered deck with gas bib, and a private fully fenced south west facing yard. Spacious, bright, great styling and quality finishes, including granite counter tops, tile, vinyl plank, 9ft ceilings, Viking gas stove, forced air heating and cooling, makes this a value priced package for owners and investors alike. Come experience what makes the Lower Mission so desirable to live in! (id:27476)

Property Highlights

MLS® Number
10380305
Type
Single Family
Community Name
Gyro Beach Townhomes
Maintenance Fee
436.69
Ownership Type
Strata
Land Size
under 1 acre
Parking Space Total
2

Building

Building Type
Row / Townhouse
Storeys
3.00
Square Footage
1392 sqft
Bathrooms Total
3
Bedrooms Total
3
Fireplace Present
No
Basement Type
Basement Features
Building Heating Type
Forced air, Hot Water
Heating Fuel
Building Cooling Type
Central air conditioning

Utilities

Water
Municipal water
Utility Sewer
Municipal sewage system

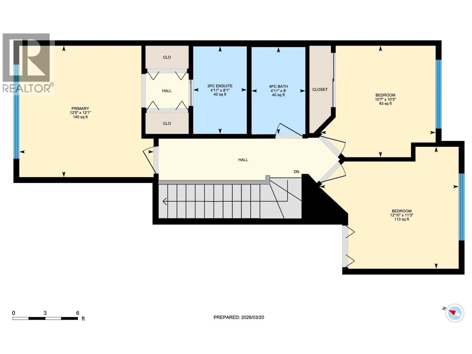
Room Layout

Bedroom
Second level
12'10'' x 11'3''
Bedroom
Second level
10'7'' x 10'3''
Full bathroom
Second level
4'11'' x 8'
Full ensuite bathroom
Second level
4'11'' x 8'1''
Primary Bedroom
Second level
12'5'' x 12'1''
Living room
Main level
12'8'' x 11'8''
Dining room
Main level
10'6'' x 12'5''
Kitchen
Main level
9'1'' x 8'5''
Partial bathroom
Main level
7'5'' x 5'1''
Den
Main level
9'1'' x 8'8''

Location

Learn more about this property
Listing provided by:
CIR Realty
MLS® number:
10380305
Agent:
Josh Miko
*Indicates required field
Name is required
Email is required
Please enter a valid phone number (e.g., 416-111-1111).