303 Whitman Road Unit# 101, Kelowna, British Columbia V1V 2P3

Listed for:
$500,000
2 beds
2 baths
Listed 8 days ago
Apartment for rent: 303 Whitman Road Unit# 101, Kelowna, British Columbia V1V 2P3

View all 48 photos

About

Location truly is everything, and this bright 2-bedroom, 2-bathroom corner unit puts you right in the heart of Glenmore—one of Kelowna’s most sought-after neighborhoods. Just a 2-minute walk to shopping, coffee shops, groceries, and everyday essentials, you may find your car getting a well-deserved break. Inside, the spacious layout offers a large, light-filled living area with added windows that only a corner unit can provide, along with a functional kitchen featuring space for a table. Step out to the patio for easy BBQing and relaxed outdoor living. Thoughtful updates throughout—including newer appliances, hardwood floors, fresh paint, and modern fixtures—mean you can move in and enjoy right away. Ideal for first-time buyers or downsizers, this home also offers excellent building amenities including a fitness center, amenities room, bike storage, a woodworking shop, and a guest suite for visiting friends or family. With parks, schools, and recreation all within walking distance, this is a lifestyle that’s as convenient as it is comfortable. (id:27476)

Property Highlights

MLS® Number
10379845
Type
Single Family
Community Name
Brandt's Crossing
Maintenance Fee
440.35
Ownership Type
Strata
Land Size
under 1 acre
Parking Space Total
1

Building

Building Type
Apartment
Storeys
1.00
Square Footage
1153 sqft
Bathrooms Total
2
Bedrooms Total
2
Exterior Finish
Stucco
Fireplace Present
No
Basement Type
Basement Features
Building Heating Type
Heating Fuel
Electric
Building Cooling Type
Window air conditioner

Utilities

Water
Municipal water
Utility Sewer
Municipal sewage system

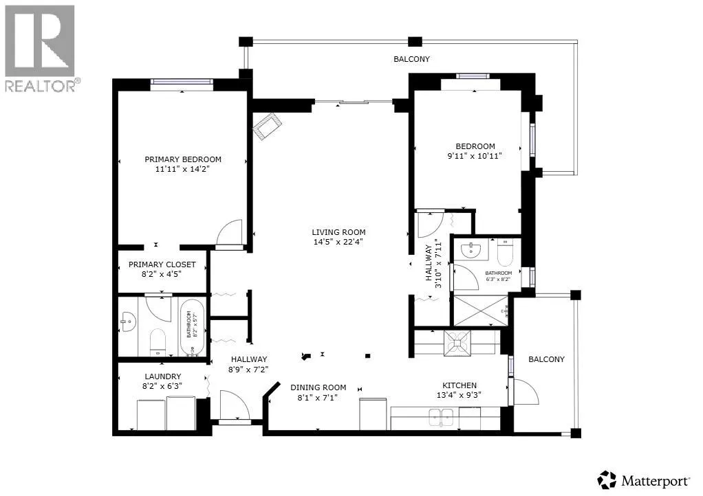
Room Layout

Dining room
Main level
8'1'' x 7'1''
Kitchen
Main level
13'4'' x 9'3''
3pc Bathroom
Main level
6'3'' x 8'2''
Other
Main level
3'10'' x 7'11''
Bedroom
Main level
9'11'' x 10'11''
Living room
Main level
14'5'' x 22'4''
Primary Bedroom
Main level
11'11'' x 14'2''
Other
Main level
8'2'' x 14'2''
3pc Bathroom
Main level
8'2'' x 5'7''
Laundry room
Main level
8'2'' x 6'3''
Other
Main level
8'9'' x 7'2''

Location

Learn more about this property
Listing provided by:
Vantage West Realty Inc.
MLS® number:
10379845
Agent:
Adam Smith
*Indicates required field
Name is required
Email is required
Please enter a valid phone number (e.g., 416-111-1111).

Street Spotlight - For sale