250 Husch Road, Kelowna, British Columbia V1X 1N1

Listed for:
$733,000
4 beds
3 baths
Listed 7 days ago
House for rent: 250 Husch Road, Kelowna, British Columbia V1X 1N1

View all 26 photos

About

Welcome to 250 Husch Road, a warm and inviting single family home located in the heart of Rutland, one of Kelowna's most convenient and family oriented neighbourhoods. This beautiful residence offers 4 spacious bedrooms and a functional layout perfect for growing families, or investors looking for strong rental potential. Set on a generously sized lot, the home features great curb appeal with a classic rancher design, a covered front porch, and mature landscaping. Inside, large windows bring in natural light throughout the living areas, creating a bright and comfortable atmosphere. The practical floor plan offers easy one level living, with additional potential in the lower level for storage, recreation, or future updates. Outside, the property includes ample yard space ideal for gardening, play, or outdoor entertaining. A covered carport provides convenient parking, while the driveway offers additional space for multiple vehicles. Located steps from schools, parks, transit, shopping, and all the amenities of Rutland, this home provides exceptional value in a rapidly growing area of Kelowna. Whether you're looking to move right in or add your personal touch, 250 Husch Road is a solid opportunity in a fantastic neighbourhood. (id:27476)

Property Highlights

MLS® Number
10380526
Type
Single Family
Ownership Type
Freehold
Land Size
0.21 ac|under 1 acre

Building

Building Type
House
Storeys
2.00
Square Footage
2310 sqft
Bathrooms Total
3
Bedrooms Total
4
Fireplace Present
No
Basement Type
Basement Features
Building Heating Type
Forced air, See remarks
Heating Fuel
Building Cooling Type
Central air conditioning

Utilities

Water
Municipal water
Utility Sewer
Septic tank

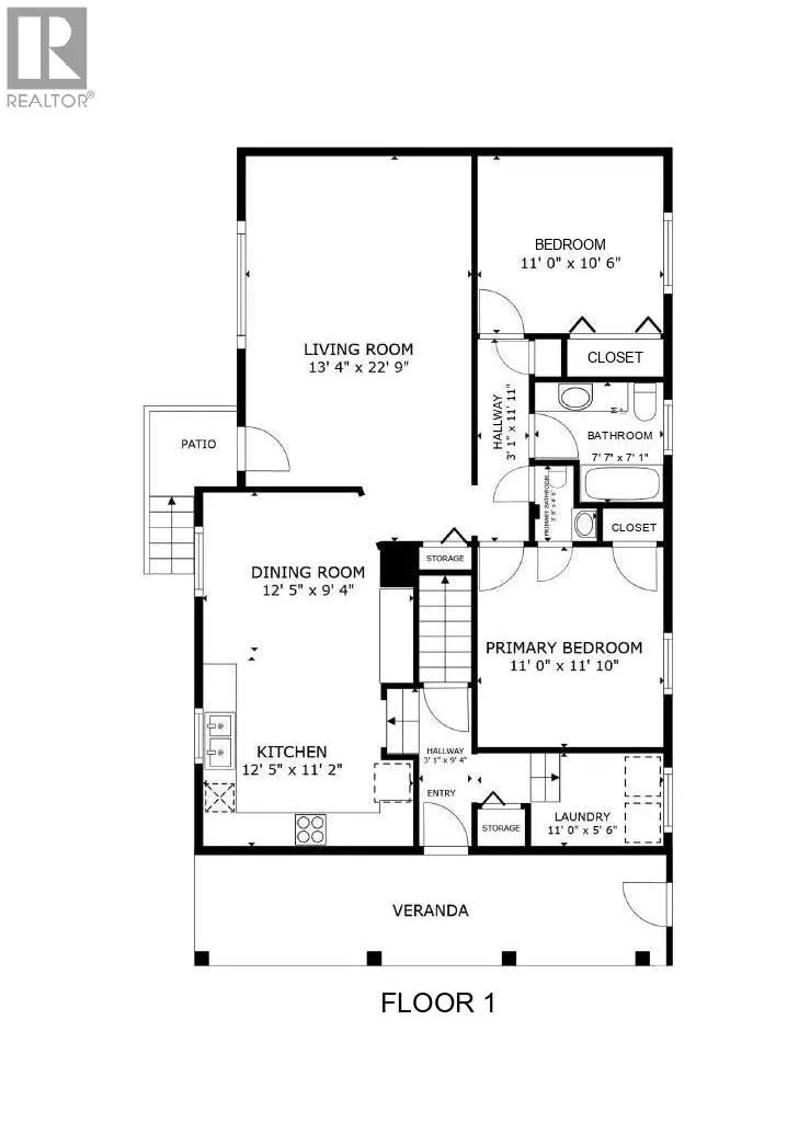
Room Layout

Bedroom
Lower level
12' x 10'
Utility room
Lower level
7' x 7'
Recreation room
Lower level
23' x 20'
Full bathroom
Lower level
10' x 6'
Bedroom
Lower level
15' x 10'
Other
Main level
28' x 12'
Bedroom
Main level
11' x 11'
Full bathroom
Main level
8' x 4'
Partial bathroom
Main level
4' x 3'
Primary Bedroom
Main level
12' x 11'
Living room
Main level
19' x 13'
Dining room
Main level
10' x 10'
Kitchen
Main level
10' x 10'
Laundry room
Main level
8' x 5'
Foyer
Main level
6' x 3'

Location

Learn more about this property
Listing provided by:
Century 21 Assurance Realty Ltd
MLS® number:
10380526
Agent:
Sawyer Pay
*Indicates required field
Name is required
Email is required
Please enter a valid phone number (e.g., 416-111-1111).