1435 Cara Glen Court Unit# 129, Kelowna, British Columbia V1V 0G1

Listed for:
$738,000
3 beds
3 baths
Listed 6 days ago
Row / Townhouse for rent: 1435 Cara Glen Court Unit# 129, Kelowna, British Columbia V1V 0G1

View all 38 photos

About

Tucked away in family-friendly Glenmore, this beautifully maintained three bedroom plus den, two and a half bath townhome offers the perfect blend of comfort, functionality, and lifestyle. Positioned away from Clifton and Cara Glen Court, this home enjoys a peaceful setting while backing directly onto the complex’s green space—ideal for relaxing, entertaining, or keeping an eye on the kids from your private patio, complete with a gas hookup. The thoughtfully designed layout features a bright multi-use flex room on the lower level—perfect as a home office, gym, or guest space—with large windows and direct access to the green area and entry. The main living area extends seamlessly to a covered deck and spacious terrace, creating a calm outdoor retreat. Upstairs, the main suite captures beautiful mountain views, adding to the home’s tranquil feel. Pride of ownership shines throughout—this four year-old home is in excellent condition, smoke-free and pet-free since new. A rare highlight is the oversized driveway with parking for two full-sized vehicles in addition to the double garage—an uncommon and highly convenient feature in the neighbourhood. An exceptional opportunity to own a quiet, well-located home in one of Kelowna's most desirable communities. Wonderful location! Only minutes from Costco, Orchard Park Shopping Centre, Downtown Kelowna, the Cultural District, Parks and Beaches, UBCO, the Airport, and more, but away from the hustle and bustle of town. (id:27476)

Property Highlights

MLS® Number
10380657
Type
Single Family
Community Name
Block 20
Maintenance Fee
285.24
Ownership Type
Strata
Land Size
under 1 acre
Parking Space Total
4

Building

Building Type
Row / Townhouse
Storeys
3.00
Square Footage
1464 sqft
Bathrooms Total
3
Bedrooms Total
3
Fireplace Present
No
Basement Type
Basement Features
Building Heating Type
Forced air
Heating Fuel
Building Cooling Type
Central air conditioning

Utilities

Water
Community Water User's Utility
Utility Sewer
Municipal sewage system

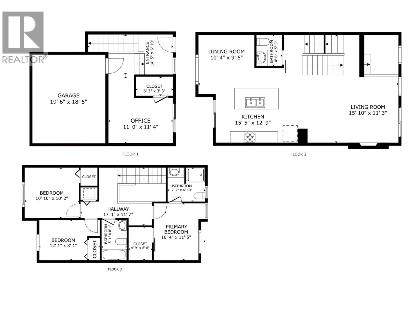
Room Layout

Full bathroom
Second level
7'10'' x 4'11''
Bedroom
Second level
10'4'' x 10'
Bedroom
Second level
9'6'' x 7'11''
Full ensuite bathroom
Second level
7'9'' x 6'9''
Primary Bedroom
Second level
11'2'' x 9'0''
Foyer
Lower level
6'8'' x 5'2''
Den
Lower level
11' x 7'11''
Partial bathroom
Main level
5'2'' x 4'2''
Dining room
Main level
10'4'' x 9'5''
Living room
Main level
15'10'' x 11'3''
Kitchen
Main level
15'5'' x 12'9''

Location

Learn more about this property
Listing provided by:
Century 21 Assurance Realty Ltd
MLS® number:
10380657
Agent:
Bo Skapski
*Indicates required field
Name is required
Email is required
Please enter a valid phone number (e.g., 416-111-1111).

Street Spotlight - For sale