2626 Middle Bench Road, Keremeos, British Columbia V0X 1N2

Listed for:
$3,900,000
3 beds
3 baths
Listed 33 days ago
Other for rent: 2626 Middle Bench Road, Keremeos, British Columbia V0X 1N2

View all 43 photos

Learn more about this property
Listing provided by:
Easy List Realty
MLS® number:
10355076
Agent:
Darya Pfund
*Indicates required field
Name is required
Email is required
Please enter a valid phone number (e.g., 416-111-1111).

About

For more information click the brochure button. Beautiful property in the Similkameen Valley near Keremeos. This large timber-frame home features a metal roof, gas heat, heat pump, solar hot water, and a 30-panel solar grid with meter connection. Thermostat and greenhouse systems are accessible by phone. Ground-level entry leads to a grand foyer and an open-concept kitchen perfect for entertaining, with stainless steel appliances including a 36"" six-burner gas stove. Upstairs offers vaulted ceilings with tile and hardwood floors. Potential for a main floor suite or B&B with minimal changes—ideal for multi-generational living. Large garage/shop includes a rooftop patio. Greenhouse grows tropical fruit and is fully automated. Room potentially for a second home or carriage house. Property has 7 acres of producing cherries, creek with concrete bridge, and two road frontages with water/power access. Irrigation and domestic water supplied by the Irrigation District. Enjoy horseback riding, fishing, and hiking without leaving the area. Quiet, dry climate with minimal snowfall and mild falls. Snow melts quickly on the paved driveway. Farm is currently leased; crop estimated at 150,000 lbs. Eligible for crop insurance, AgriInvest, and replant programs. Includes tractor, flail mower, tiller, pallet forks, man lift, and totes. A one-of-a-kind property! (id:27476)

Property Highlights

MLS® Number
10355076
Type
Agriculture
Ownership Type
Freehold
Land Size
9.61 ac|5 - 10 acres
Parking Space Total
17

Building

Building Type
Other
Storeys
2.00
Square Footage
4410 sqft
Bathrooms Total
3
Bedrooms Total
3
Amenities
Golf Nearby, Airport, Recreation, Schools, Shopping, Ski area
Exterior Finish
Stone
Fireplace Present
Yes
Basement Type
Basement Features
Building Heating Type
Forced air, Heat Pump, See remarks
Heating Fuel
Other
Building Cooling Type
Central air conditioning, Heat Pump

Utilities

Water
Irrigation District

Room Layout

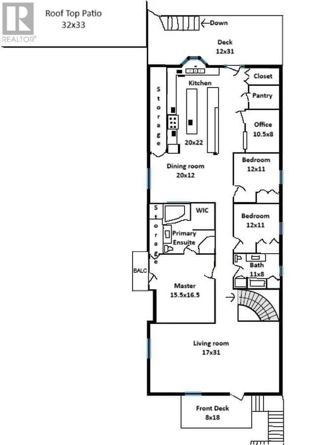
Kitchen
Second level
20'0'' x 22'0''
Pantry
Second level
7'6'' x 5'6''
Office
Second level
10'6'' x 8'0''
Dining room
Second level
20'0'' x 12'0''
Bedroom
Second level
12'0'' x 11'0''
Bedroom
Second level
12'0'' x 11'0''
3pc Bathroom
Second level
11'0'' x 8'0''
Primary Bedroom
Second level
15'6'' x 16'5''
4pc Ensuite bath
Second level
14'0'' x 12'0''
Other
Second level
6'0'' x 6'0''
Living room
Second level
17'0'' x 31'0''
Library
Main level
16'0'' x 10'0''
Foyer
Main level
16'0'' x 31'0''
3pc Bathroom
Main level
9'0'' x 8'0''
Living room
Main level
21'0'' x 22'0''
Hobby room
Main level
21'0'' x 22'0''
Other
Main level
9'6'' x 21'0''

Location