A 322 Industrial Avenue, Kitimat, British Columbia V8C 2E9

Listed for:
$22
0 beds
0 baths
Listed 73 days ago
A 322 Industrial Avenue, Kitimat, British Columbia V8C 2E9

View all 17 photos

About

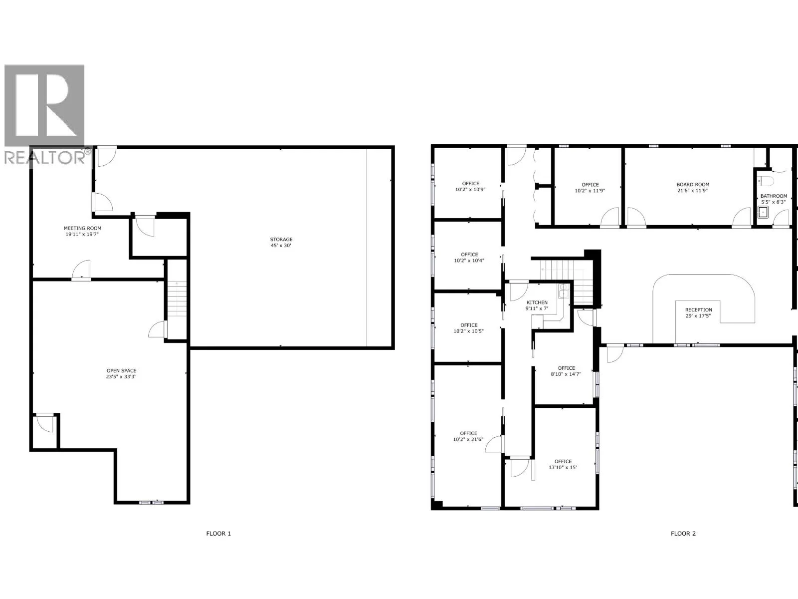
Well-located office space available for lease, ideal for a large businesses looking for a professional and accessible workspace. The layout includes several private offices, reception area, flexible workspace options, basement storage, and a lunch room. Convenient access and parking make it easy for both staff and clients. A great opportunity for professional services, contractors, or any businesses looking to establish a strong presence in Kitimat. This location is located a few minutes from LNG Canada, Rio Tinto BC Works, and Cedar LNG. (id:27476)

Property Highlights

MLS® Number
C8076764
Type
Office

Building

Amenities
Storefront
Fireplace Present
No
Basement Type
Basement Features
Building Heating Type
Heating Fuel
Building Cooling Type

Location

Learn more about this property
Listing provided by:
Century 21 Northwest Realty Ltd.
MLS® number:
C8076764
Agent:
Giuseppe Bravo
*Indicates required field
Name is required
Email is required
Please enter a valid phone number (e.g., 416-111-1111).