4961 Aho Rd, Ladysmith, British Columbia V9G 1G8

Listed for:
$1,239,000
5 beds
4 baths
Listed 79 days ago
House for rent: 4961 Aho Rd, Ladysmith, British Columbia V9G 1G8

View all 68 photos

Learn more about this property
Listing provided by:
Royal LePage Nanaimo Realty LD
MLS® number:
1012146
Agent:
Keith Mazurenko
*Indicates required field
Name is required
Email is required
Please enter a valid phone number (e.g., 416-111-1111).

About

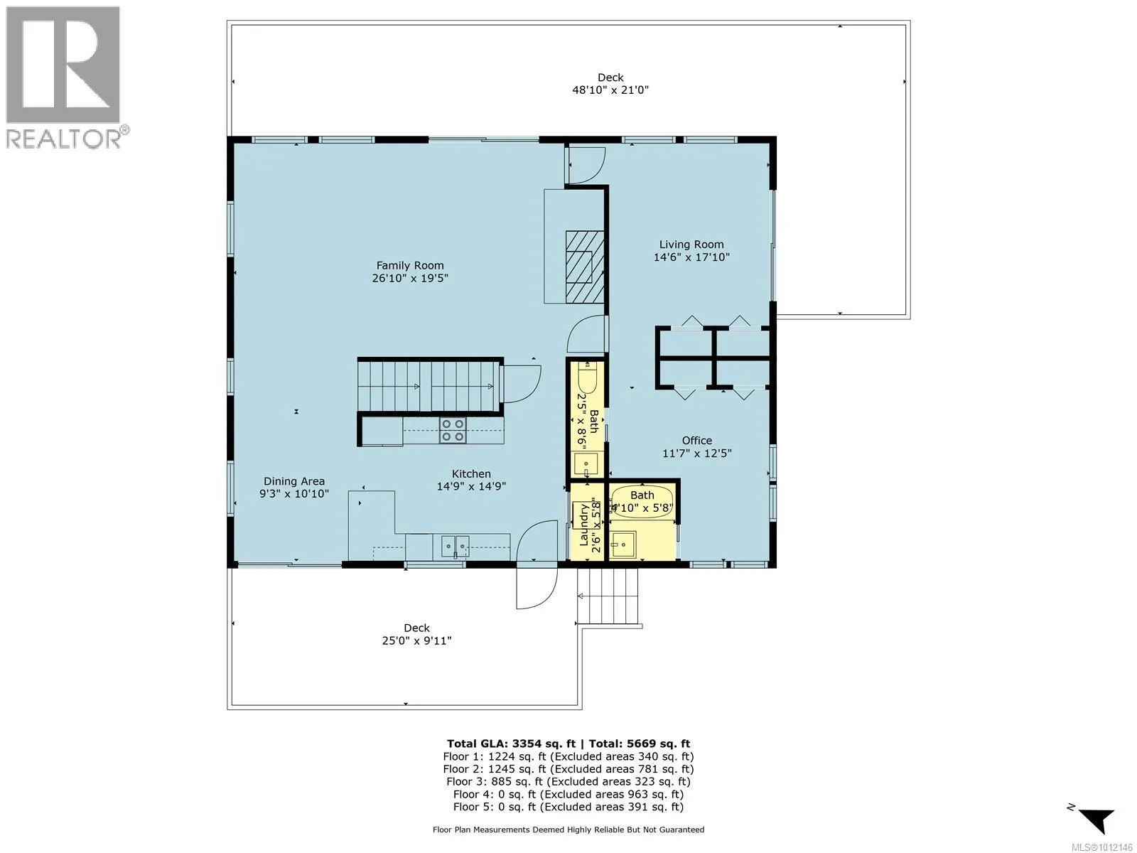
Nestled in the highly sought-after Woodley Ridge area, this immaculate West Coast-style home sits on a breathtaking 5-acre natural forested lot, offering a serene, private setting just 10 minutes from town, the airport, and golf, and only 20 minutes to the ferry. A truly rare opportunity for those seeking both luxury and nature. Boasting over 3,457 sq ft across three spacious levels, this beautifully maintained home features 5 bedrooms and 4 bathrooms, including a loft-style upper floor with soaring vaulted ceilings and 3 generously sized bedrooms. The lower level offers a bright one-bedroom layout with easy potential for a second bedroom and suite conversion—ideal for guests, rental income, or extended family. Enjoy the warmth and charm of a beautiful fireplace, a newer roof, efficient heat pump, and extensive deck space perfect for outdoor living. Explore multiple tranquil spots on the property for camping, reflection, or soaking in nature—all while enjoying potential mountain and valley views with some clearing. A large detached shop with high overhead doors easily accommodates your RV, boat, or other toys. This is a one-of-a-kind property that blends comfort, functionality, and the beauty of untouched nature. Whether you're looking for your forever home, a family estate, or a peaceful escape, this gem delivers. (id:27476)

Property Highlights

MLS® Number
1012146
Type
Single Family
Ownership Type
Freehold
Land Size
5.46 ac
Parking Space Total
4

Building

Building Type
House
Square Footage
3457 sqft
Bathrooms Total
4
Bedrooms Total
5
Fireplace Present
Yes
Basement Type
Basement Features
Building Heating Type
Heat Pump
Heating Fuel
Electric
Building Cooling Type
Air Conditioned

Location