414 Thetis Dr, Ladysmith, British Columbia V9G 0C1

Listed for:
$1,495,000
5 beds
6 baths
Listed 165 days ago
House for rent: 414 Thetis Dr, Ladysmith, British Columbia V9G 0C1

View all 59 photos

About

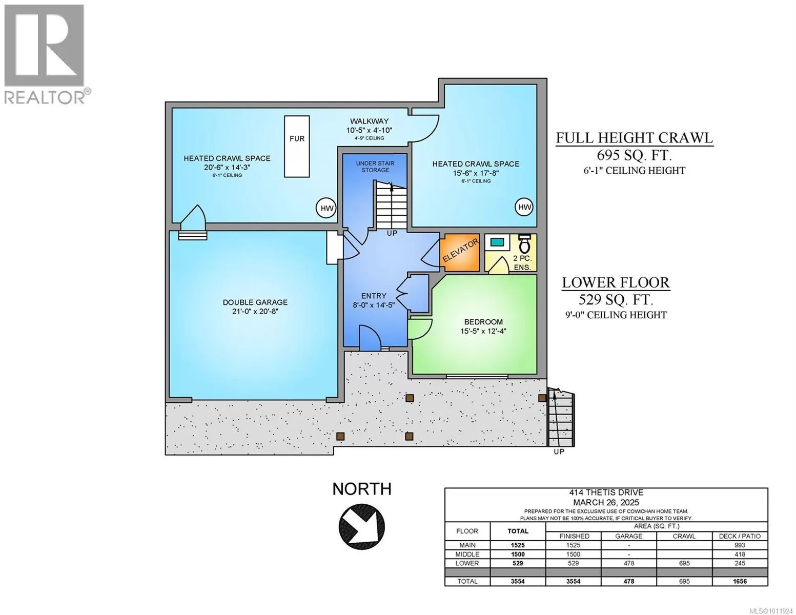
Custom executive home with incredible 180 degree views of Stuart Channel the Gulf Islands and across Georgia Strait to the snow capped Coastal Mountain range. This expansive plan over three levels is blanketed in rich hardwood flooring with loads of windows for abundant natural light. All floors are serviced by the elevator which is located immediately as you enter the home. 4 bedrooms, 3 of which have ensuites, an office, 2 additional bathrooms and a contained 1 bedroom secondary suite round out the open floorplan and offer plenty of luxury for children and guests alike. Expansive decks provide enormous outdoor living space for BBQ's and entertaining while a private covered rear patio area offers some shade on those hot summer days. Storage is a plenty with over 600sqft of heated and well lit stand up crawlspace off the garage. Zero maintenance landscaping includes synthetic turf and rockwork, great for your back and the environment! (id:27476)

Property Highlights

MLS® Number
1011924
Type
Single Family
Ownership Type
Freehold
Land Size
12504 sqft
Parking Space Total
5

Building

Building Type
House
Square Footage
4170 sqft
Bathrooms Total
6
Bedrooms Total
5
Fireplace Present
Yes
Basement Type
Basement Features
Building Heating Type
Heat Pump
Heating Fuel
Building Cooling Type
Fully air conditioned

Location

Learn more about this property
Listing provided by:
D.F.H. Real Estate Ltd. (CwnBy)
MLS® number:
1011924
Agent:
Brock Dupont
*Indicates required field
Name is required
Email is required
Please enter a valid phone number (e.g., 416-111-1111).