1013 Rozzano Pl, Ladysmith, British Columbia V9G 1P8

Listed for:
$869,900
4 beds
3 baths
Listed 26 days ago
House for rent: 1013 Rozzano Pl, Ladysmith, British Columbia V9G 1P8

View all 34 photos

Learn more about this property
Listing provided by:
REMAX Professionals (NA)
MLS® number:
1021421
Agent:
Martin Velsen
*Indicates required field
Name is required
Email is required
Please enter a valid phone number (e.g., 416-111-1111).

About

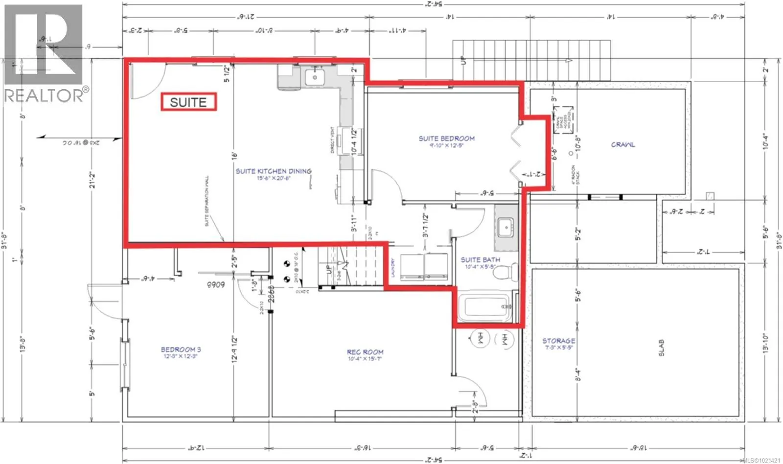
BRAND NEW Level-entry home with legal suite - a perfect sized home on a quiet cul-de-sac. Thoughtfully designed for modern living, this spacious residence offers 4 bedrooms, including a fully self-contained 1-bedroom legal suite with a private entrance and separate hydro meter. The main level is an open-concept living and dining area with vaulted ceilings, an eco-friendly electric fireplace, and premium German laminate flooring throughout. The kitchen has quartz counters and a full appliance package. The primary suite includes a 4-piece ensuite and a generous walk-in closet. The lower-level suite provides a family room, a 3rd bedroom with outside access and a 1-bedroom suite. This home is car charger ready and equipped with a high-efficiency electric heat pump and HRV system, ensuring year-round comfort with both heating and air conditioning. Full appliance package and window coverings included. GST rebate applies so $0 GST plus any first-time buyers also save $8000 on transfer tax (id:27476)

Property Highlights

MLS® Number
1021421
Type
Single Family
Ownership Type
Freehold
Land Size
4004 sqft
Parking Space Total
2

Building

Building Type
House
Square Footage
2588 sqft
Bathrooms Total
3
Bedrooms Total
4
Fireplace Present
Yes
Basement Type
Basement Features
Building Heating Type
Heat Pump
Heating Fuel
Building Cooling Type
Wall unit

Location