11852 Highway 97 Unit# 15 & 16, Lake Country, British Columbia V4V 1E3

Listed for:
$30
0 beds
0 baths
Listed 40 days ago
Retail for rent: 11852 Highway 97 Unit# 15 & 16, Lake Country, British Columbia V4V 1E3

View all 15 photos

Learn more about this property
Listing provided by:
Venture Realty Corp.
MLS® number:
10358082
Agent:
Lee Levering
*Indicates required field
Name is required
Email is required
Please enter a valid phone number (e.g., 416-111-1111).

About

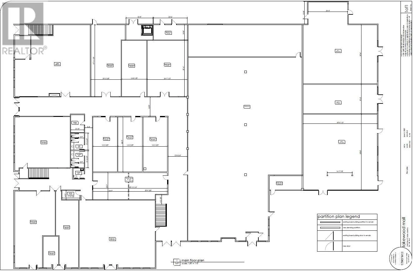
Opportunity to combine two units for a total of 1,344 sf at Lakewood Mall suitable for restaurant/QSR, medical, retail, and office tenants. Potential to combine a third unit as well for a total of 2,016 sf. These interior mall units have two common entrances from high-traffic and high-exposure sides of the mall. Lakewood Mall is located just off off Highway 97 at the north end of Lake Country between Kelowna and Vernon and is home to popular tenants including Tim Horton’s, Dollarama, Grillers Meats and more, including new and exciting tenants to open for business in 2026. Spaces ranging from 672 up to 2,516 square feet available for possession in early-2026 . Ample onsite parking, new pylon signage, and high exposure building signage opportunities are available. A completely new mall exterior and new/reconfigured retail spaces are coming soon to Lakewood Mall and now being leased. Other significant building and site upgrades resulting in a fully refurbished shopping centre with construction underway. Lakewood Mall re-imagined! (id:27476)

Property Highlights

MLS® Number
10358082
Type
Retail
Land Size
under 1 acre

Building

Building Type
Retail
Square Footage
1344 sqft
Amenities
Recreation, Shopping
Fireplace Present
No
Basement Type
Basement Features
Building Heating Type
Heating Fuel
Building Cooling Type

Location

Street Spotlight - For lease