212 Oak Lane, Lake Cowichan, British Columbia V0R 2G0

Listed for:
$574,900
2 beds
2 baths
Listed 104 days ago
House for rent: 212 Oak Lane, Lake Cowichan, British Columbia V0R 2G0

View all 21 photos

About

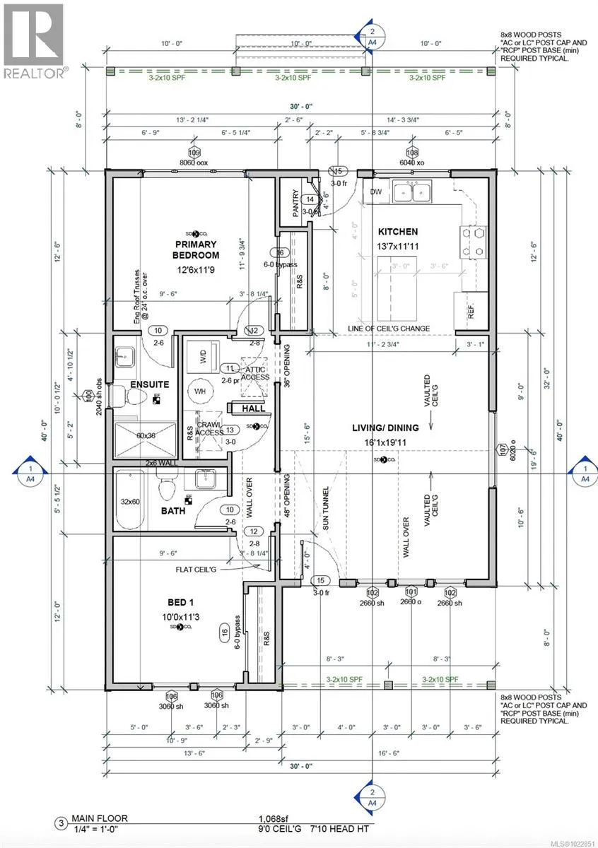
Welcome to this brand-new 2 bedroom, 2 bathroom home tucked away in a quiet area of Lake Cowichan. Thoughtfully designed with comfort and style in mind, this home features high-end finishings throughout including hardwood floors, quartz countertops, and stainless steel appliances. Large windows fill the space with natural light, highlighting the clean lines and modern design. Step outside to the back deck, perfect for relaxing or entertaining. Efficiently heated and cooled by a heat pump, this home combines modern convenience with timeless quality. (id:27476)

Property Highlights

MLS® Number
1022851
Type
Single Family
Ownership Type
Freehold
Land Size
3049 sqft
Parking Space Total
2

Building

Building Type
House
Square Footage
1068 sqft
Bathrooms Total
2
Bedrooms Total
2
Fireplace Present
No
Basement Type
Basement Features
Building Heating Type
Heat Pump
Heating Fuel
Building Cooling Type
Fully air conditioned

Location

Learn more about this property
Listing provided by:
MLS® number:
1022851
Agent:
Cal Kaiser
*Indicates required field
Name is required
Email is required
Please enter a valid phone number (e.g., 416-111-1111).