148 Clovermeadow Crescent, Langley, British Columbia V2Z 2R1

Listed for:
$2,499,000
5 beds
5 baths
Listed 40 days ago
House for rent: 148 Clovermeadow Crescent, Langley, British Columbia V2Z 2R1

View all 40 photos

Learn more about this property
Listing provided by:
Macdonald Realty (Surrey/152)
MLS® number:
R3044863
Agent:
Wes Hansen
*Indicates required field
Name is required
Email is required
Please enter a valid phone number (e.g., 416-111-1111).

About

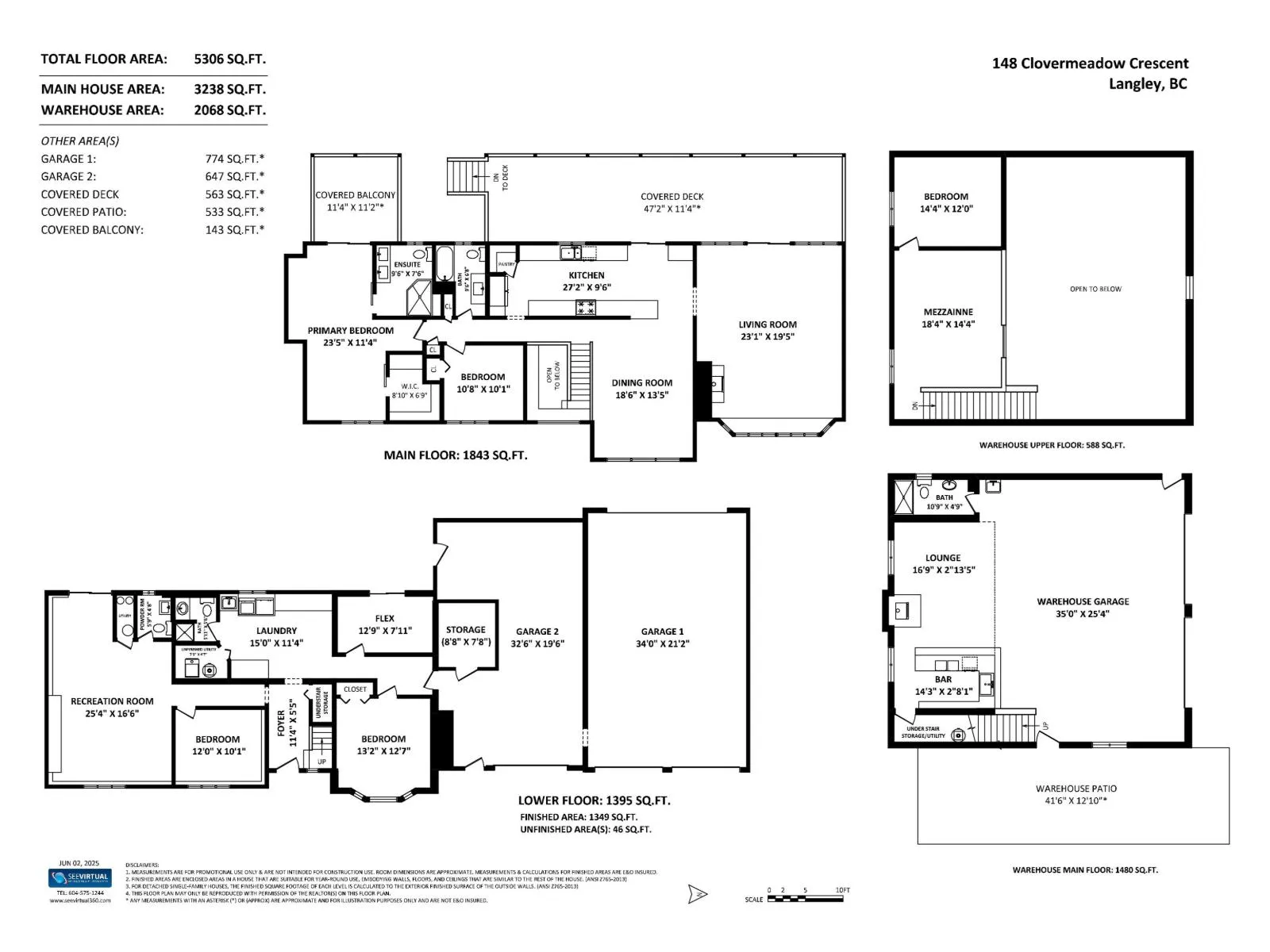
Welcome to your private sanctuary in Salmon River! Beautifully updated home on a 1.19 acre estate lot blending luxury, comfort, & functionality. The deluxe kitchen has Caesarstone counters, high-end appliances, & an open layout, perfect for entertaining. The spacious primary suite feats a 5-piece ensuite, walk-in closet, & private sundeck. Downstairs offers 2 bedrooms, den, media room, & large updated laundry room. For the car enthusiast, a 36'x40' shop complete w/ 25' vaulted ceilings, 14' doors, epoxy floor, full wet bar, full bath, bedroom, mezzanine, and more! Expansive heated sundeck & patio w/Swim Spa. Updates inc. roof, furnace, drainage, AC, paint, new driveway w streetlight. Attached triple car (pull-though) garage. No creeks or easements, gated & fully fenced South facing yard. (id:27476)

Property Highlights

MLS® Number
R3044863
Type
Single Family
Ownership Type
Freehold
Land Size
51836 sqft
Parking Space Total
15

Building

Building Type
House
Square Footage
3238 sqft
Bathrooms Total
5
Bedrooms Total
5
Fireplace Present
Yes
Basement Type
Full (Finished)
Basement Features
Unknown
Building Heating Type
Forced air
Heating Fuel
Natural gas
Building Cooling Type
Air Conditioned

Utilities

Water
Drilled Well
Utility Sewer
Septic tank

Location