20453 78a Avenue, Langley, British Columbia V2Y 1X3

Listed for:
$1,978,888
6 beds
6 baths
Listed 49 days ago
House for rent: 20453 78a Avenue, Langley, British Columbia V2Y 1X3

View all 2 photos

Learn more about this property
Listing provided by:
Sutton Group-West Coast Realty
MLS® number:
R3052535
Agent:
Aman Ugre
*Indicates required field
Name is required
Email is required
Please enter a valid phone number (e.g., 416-111-1111).

About

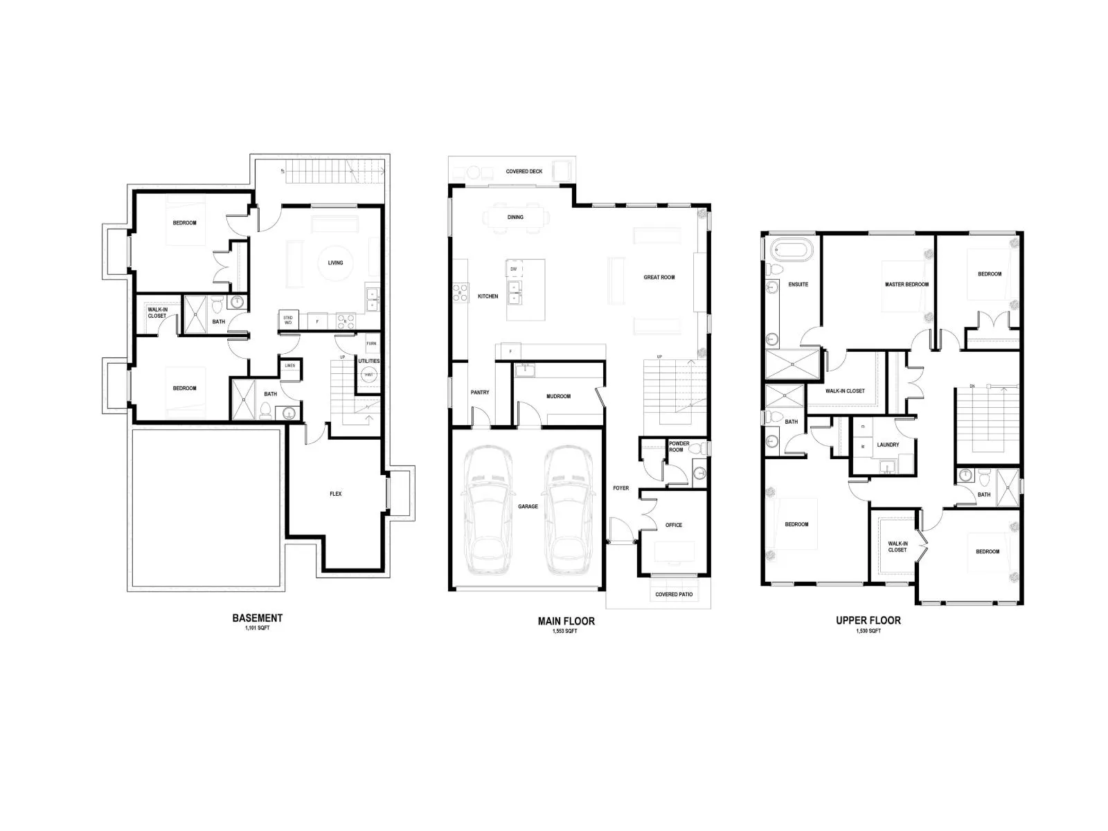
Introducing Lot 12 at the Seventy-Eight Collection in Willoughby, Langley. This brand-new single-family home sits on a 3,700 sq. ft. lot and offers over 4,000 sq. ft. of finished living space across three levels. Designed with families in mind, the home features 7 bedrooms, 5.5 bathrooms, an open-concept main floor with a gourmet kitchen, and a spacious great room. The fully finished basement with separate entry provides flexibility for a suite or additional living space. Located steps from schools, parks, and shops, this move-in ready home combines modern comfort with everyday convenience. Estimated completion Q3 2026. (id:27476)

Property Highlights

MLS® Number
R3052535
Type
Single Family
Ownership Type
Freehold
Land Size
3740 sqft

Building

Building Type
House
Square Footage
4181 sqft
Bathrooms Total
6
Bedrooms Total
6
Amenities
Air Conditioning, Laundry - In Suite
Fireplace Present
No
Basement Type
Full (Finished)
Basement Features
Separate entrance
Building Heating Type
Forced air
Heating Fuel
Building Cooling Type

Utilities

Water
Municipal water
Utility Sewer
Sanitary sewer, Storm sewer

Location