5 23141 72 Avenue, Langley, British Columbia V2Y 2R9

Listed for:
$139,900
2 beds
1 baths
Listed 19 days ago
Manufactured Home for rent: 5 23141 72 Avenue, Langley, British Columbia V2Y 2R9

View all 26 photos

Learn more about this property
Listing provided by:
One Percent Realty Ltd.
MLS® number:
R3062075
Agent:
Donna Fuller
*Indicates required field
Name is required
Email is required
Please enter a valid phone number (e.g., 416-111-1111).

About

ATTENTION RETIREES. Hurry, Quick Possession possible!!! Age restricted 55+, one Cat allowed. Home in the Country yet awesome access to Langley & Highway #1. Listed well below assessment value. Current pad rent $504.13. Nice Corner Lot provides East, South, West Exposure and privacy! 14 wide on a concrete pad with huge carport. Improvements include a generator plug, updated asphalt roof and gutters in 2016, two remote controlled mini AC splits/heat pumps in 2020, new bottom freezer fridge in May 2025. 2 Storage sheds included (1 new shelter logic/shed April 2025). RV storage may be available from management at an additional cost depending on availability. (id:27476)

Property Highlights

MLS® Number
R3062075
Type
Single Family
Ownership Type
Leasehold
Parking Space Total
2

Building

Building Type
Manufactured Home
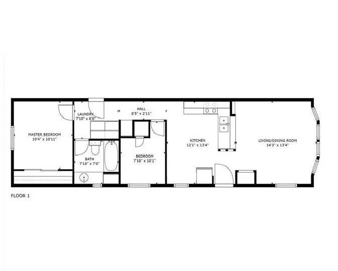
Square Footage
728 sqft
Bathrooms Total
1
Bedrooms Total
2
Fireplace Present
No
Basement Type
Crawl space (Finished)
Basement Features
Unknown
Building Heating Type
Forced air
Heating Fuel
Natural gas
Building Cooling Type
Air Conditioned

Utilities

Water
Municipal water
Utility Sewer
Storm sewer

Location

Street Spotlight - For sale