A110 8233 208b Street, Langley, British Columbia V2Y 4M7

Listed for:
$60
0 beds
0 baths
Listed 87 days ago
A110 8233 208b Street, Langley, British Columbia V2Y 4M7

View all 16 photos

About

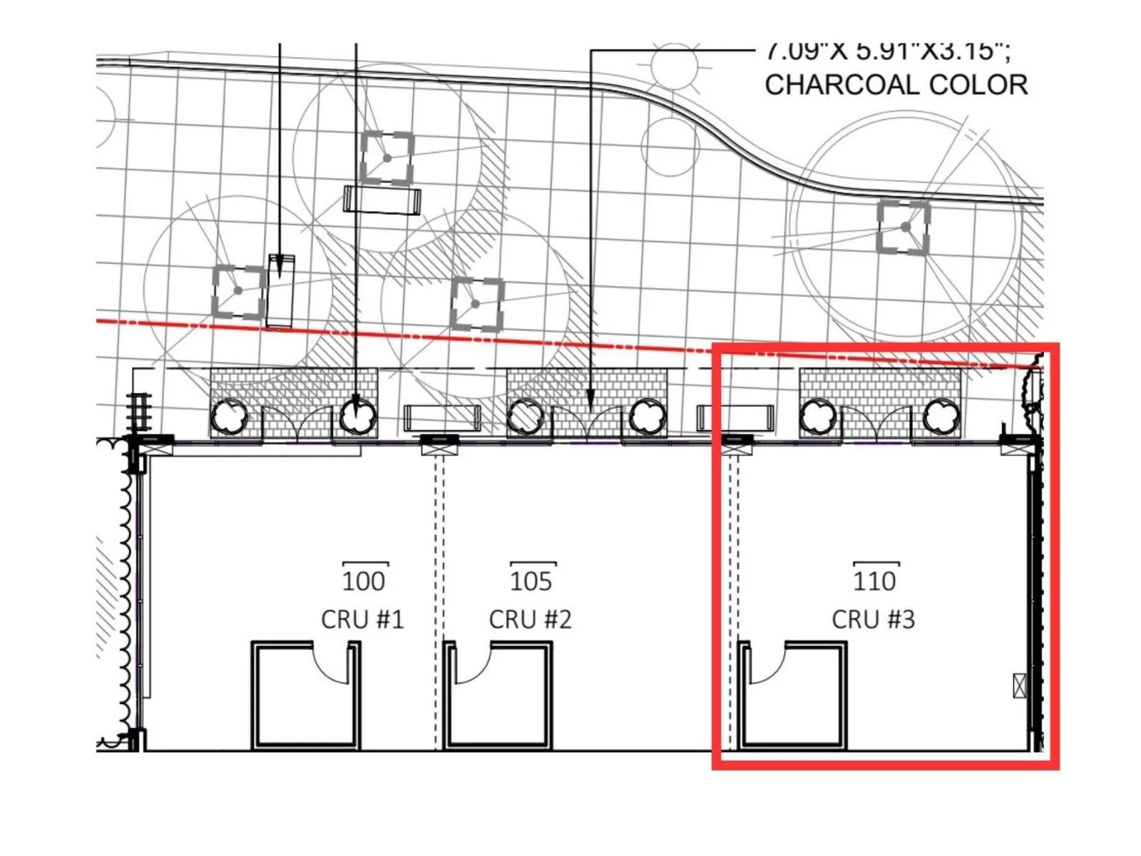
Located in the highly sought-after Willoughby, Langley area. This 682 sqf CORNER shell unit offers exceptional visibility at the bustling intersection of 208 St and 83rd Ave. Surrounded by a growing residential community and within walking distance to Willoughby Town Centre, this high-foot-traffic location is ideal for a variety of businesses. Enjoy the convenience of street parking right in front and three dedicated parking spots exclusive to the unit. With rapid new developments in the area, this space is perfect for businesses such as take-out and fast food restaurants, cafés, financial services, general office use (notary, lawyer, accountant, real estate) medical and veterinary clinics, barbershops, salons, dry cleaners, tailors, spas, yoga and dance studios, coaching institutes, and more. (id:27476)

Property Highlights

MLS® Number
C8075209
Type
Retail

Building

Amenities
Storefront
Fireplace Present
No
Basement Type
Basement Features
Building Heating Type
Heating Fuel
Building Cooling Type

Location

Learn more about this property
Listing provided by:
YPA Your Property Agent
MLS® number:
C8075209
Agent:
Amit Arora
*Indicates required field
Name is required
Email is required
Please enter a valid phone number (e.g., 416-111-1111).