13564 Lee Road, Madeira Park, British Columbia V0N 1S1

Listed for:
$819,000
2 beds
2 baths
Listed 69 days ago
House for rent: 13564 Lee Road, Madeira Park, British Columbia V0N 1S1

View all 31 photos

Learn more about this property
Listing provided by:
ComFree
MLS® number:
R3041210
Agent:
Erin Holowach
*Indicates required field
Name is required
Email is required
Please enter a valid phone number (e.g., 416-111-1111).

About

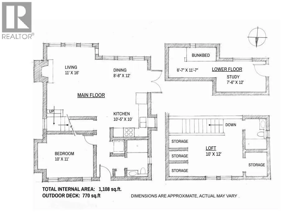
Treefrog Cabin is your sweet get-away on the Sunshine Coast BC, perched atop a quiet cul-de-sac beside Pender Hill, with breath-taking south-facing views of Georgia Strait, Texada and Vancouver Island. 2 bedrooms, 2 bathrooms + a separate study/guest-room with built-in bunk-beds. Features bright, open plan layout with high vaulted ceilings, wide plank douglas fir floors, granite countertops, s/s appliances and a stone-faced fireplace. Enjoy the big sunny deck, perennial flower and raised veggie garden beds, a shed, a firepit and a path that meanders down to a lower area ready for your ideas on the half-acre lot. Home comes furnished and equipped, all-set for your summer with family or friends at the cabin. Lakes, hiking trails, pickleball, a golf-course and the ocean await you! (id:27476)

Property Highlights

MLS® Number
R3041210
Type
Single Family
Ownership Type
Freehold
Land Size
55.77 x 414

Building

Building Type
House
Square Footage
1108 sqft
Bathrooms Total
2
Bedrooms Total
2
Fireplace Present
No
Basement Type
Unknown (Finished)
Basement Features
Separate entrance
Building Heating Type
Heating Fuel
Electric, Wood
Building Cooling Type

Location