3850 Sommerville - Husted Road, Malakwa, British Columbia V0E 2J0

Listed for:
$1,185,000
4 beds
4 baths
Listed 58 days ago
House for rent: 3850 Sommerville - Husted Road, Malakwa, British Columbia V0E 2J0

View all 93 photos

Learn more about this property
Listing provided by:
Re/Max At Mara Lake
MLS® number:
10350990
Agent:
Howard Sundby
*Indicates required field
Name is required
Email is required
Please enter a valid phone number (e.g., 416-111-1111).

About

Welcome to your private retreat on the serene Eagle River. Nestled on 4.04 acres of natural beauty, this stunning 4000 sq.ft. custom-built home offers a rare combination of luxury, efficiency, and tranquility. Features of this incredible property are: 4 Spacious Bedrooms – Including a luxurious primary suite with spa-inspired ensuite and walk-in closet, 4 Bathrooms – Elegant, modern finishes throughout, Triple Car Garage – Room for all your vehicles and outdoor gear, Geo-Thermal Heating & A/C ,Sustainable, energy-efficient climate control year-round, Private, Forested Setting – Mature trees and lush landscape provide unmatched seclusion, 4000 Sq.Ft. of Elegant Living Space – Ideal for entertaining and family living. Direct riverfront access to the Eagle River – perfect for fishing, kayaking, or simply relaxing by the water and near snowmobile trail heads for some of the best snowmobiling in Western Canada. Expansive grounds with room for gardens, trails, and outdoor living,Peaceful and private, yet conveniently located near amenities and local attractions.Additional Features include Open-concept layout with vaulted ceilings and large windows for natural light, Gourmet kitchen with premium appliances and large island with several drawers, Multiple indoor/outdoor living spaces – ideal for gatherings or quiet evenings. Only 35 minutes to Revelstoke & 15 mins to Sicamous, both known as a Four Season Destination. Click Multi-Media to view floor plan, X out to view virtual tour. (id:27476)

Property Highlights

MLS® Number
10350990
Type
Single Family
Ownership Type
Freehold
Land Size
4.04 ac|1 - 5 acres
Parking Space Total
16

Building

Building Type
House
Storeys
2.00
Square Footage
4080 sqft
Bathrooms Total
4
Bedrooms Total
4
Amenities
Recreation
Exterior Finish
Vinyl siding
Fireplace Present
Yes
Basement Type
Basement Features
Building Heating Type
Forced air
Heating Fuel
Geo Thermal
Building Cooling Type
See Remarks

Utilities

Water
Well
Utility Sewer
Septic tank

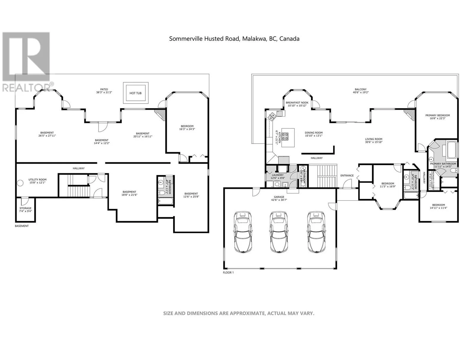
Room Layout

4pc Bathroom
Basement
10'4'' x 5'2''
Bedroom
Basement
17' x 13'5''
Other
Main level
27' x 36'
Other
Main level
7' x 4'2''
Foyer
Main level
9' x 7'6''
Laundry room
Main level
11' x 5'2''
2pc Bathroom
Main level
7'7'' x 3'
Living room
Main level
25' x 18'
Bedroom
Main level
13'7'' x 9'10''
Bedroom
Main level
12'10'' x 10'
Full bathroom
Main level
9' x 5'2''
4pc Ensuite bath
Main level
12'5'' x 9'5''
Primary Bedroom
Main level
15' x 14'
Dining room
Main level
11' x 14'
Dining nook
Main level
8'10'' x 8'
Kitchen
Main level
18' x 11'

Location