11013 250a Street, Maple Ridge, British Columbia V0V 0V0

Listed for:
$1,369,900
5 beds
4 baths
Listed 83 days ago
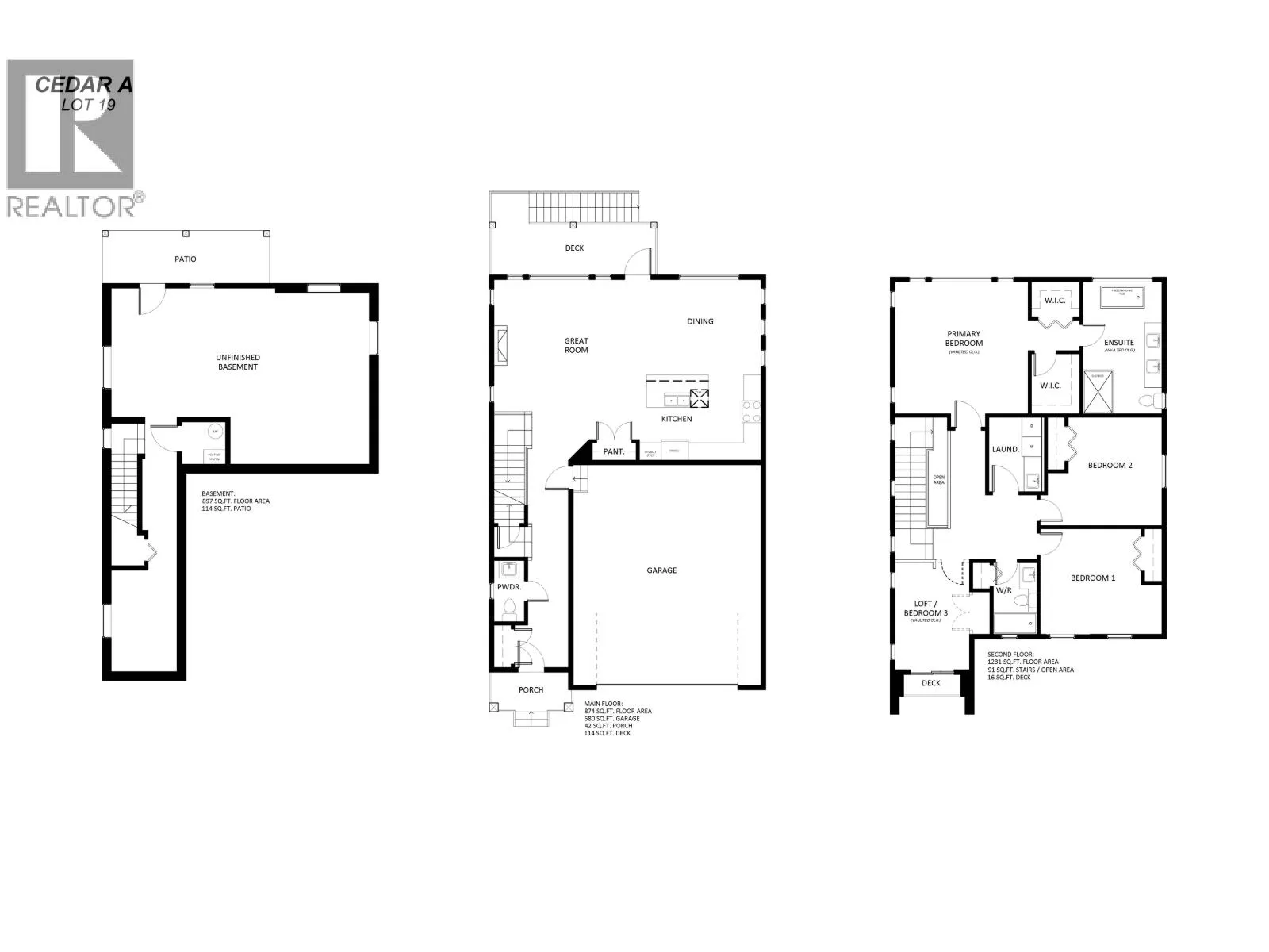
House for rent: 11013 250a Street, Maple Ridge, British Columbia V0V 0V0

View all 15 photos

Learn more about this property
Listing provided by:
Stonehaus Realty Corp.
MLS® number:
R3040153
Agent:
Jeremy Mccarthy
*Indicates required field
Name is required
Email is required
Please enter a valid phone number (e.g., 416-111-1111).

About

Discover Haven, a NEW single family home community in Epic´s Kanaka Springs masterplan. Set in a serene, park-like setting surrounded by the expansive Kanaka Creek Regional Park, Haven offers Maple Ridge´s most luxurious New Home Community. The Scandinavian inspired homes feature gourmet kitchens, spa inspired primary bedrooms, oversized garages, legal basement suites, and industry leading energy efficiency. With only 36 homes backing on to lush greenbelt setting, Haven offers an exclusive opportunity to live in Maple Ridges´s most scenic enclave. Visit our Home Store and tour two fully decorated Show Homes. Move-in Homes Available. Open Saturday to Wednesday, 11 AM - 5 PM. (id:27476)

Property Highlights

MLS® Number
R3040153
Type
Single Family
Ownership Type
Freehold
Land Size
3994 sqft
Parking Space Total
4

Building

Building Type
House
Square Footage
3002 sqft
Bathrooms Total
4
Bedrooms Total
5
Amenities
Recreation
Fireplace Present
No
Basement Type
Full (Unknown)
Basement Features
Separate entrance
Building Heating Type
Forced air
Heating Fuel
Building Cooling Type

Location