10 20985 Camwood Avenue, Maple Ridge, British Columbia V2X 2N9

Listed for:
$699,999
3 beds
3 baths
Listed 63 days ago
Row / Townhouse for rent: 10 20985 Camwood Avenue, Maple Ridge, British Columbia V2X 2N9

View all 38 photos

Learn more about this property
Listing provided by:
RE/MAX All Points Realty
MLS® number:
R3044232
Agent:
Noella Neale
*Indicates required field
Name is required
Email is required
Please enter a valid phone number (e.g., 416-111-1111).

About

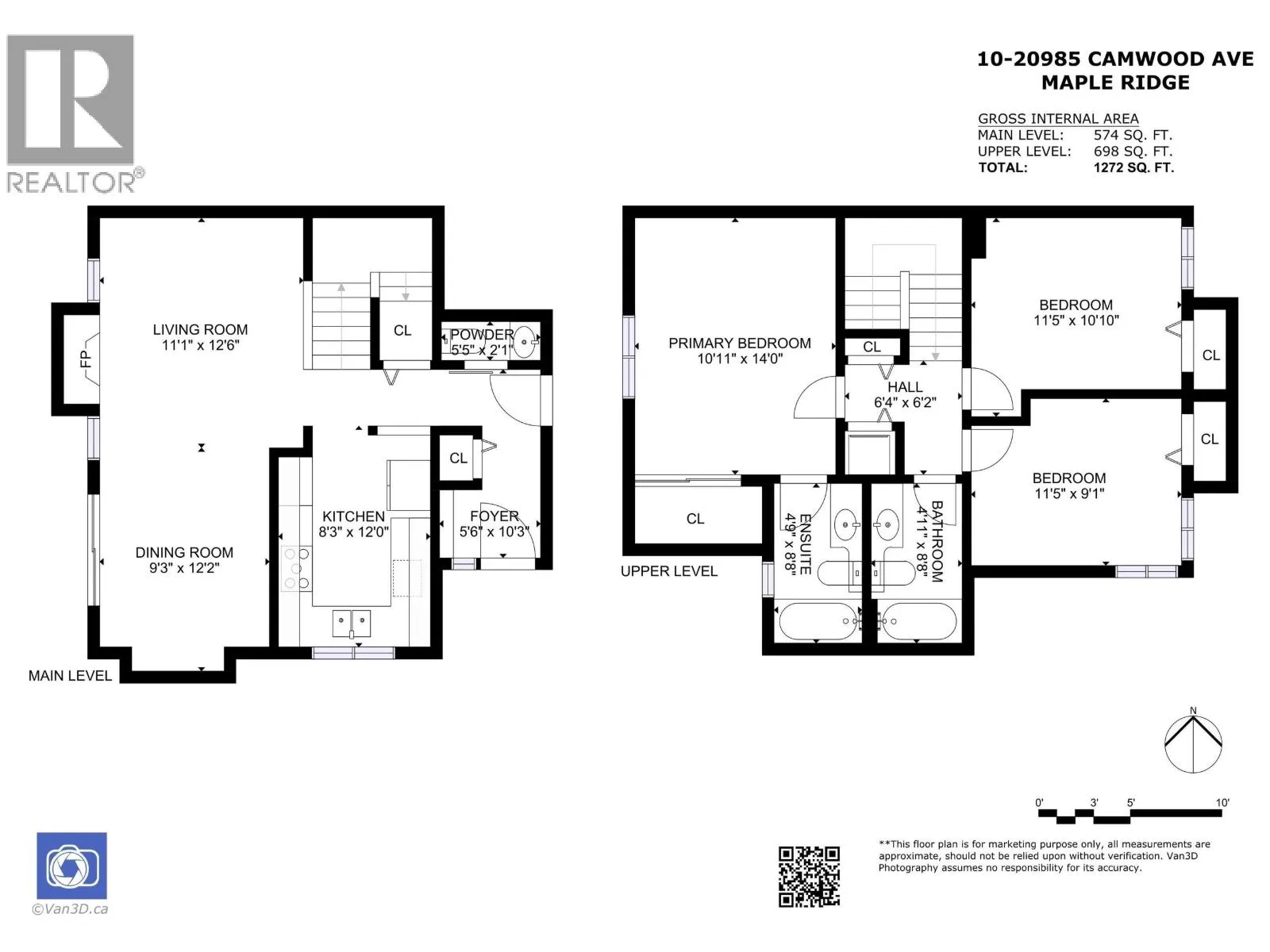
Perfect family friendly home located on the west side!! This home includes newer bathrooms and kitchen with new upgraded stainless steel appliances, white cabinets and quartz counter tops. Updated lighting, laminate flooring and carpets (upstairs). 50 gal hot water tank. The large and fully fenced backyard is perfect for entertaining, kids to play and pets. The side by side garage is ideal for storage and parking vehicles. Crawl space for extra storage. There are only 14 units in this complex, located close to shopping, schools, transit and much more. Book your private viewing today. (id:27476)

Property Highlights

MLS® Number
R3044232
Type
Single Family
Maintenance Fee
389.37
Ownership Type
Strata
Parking Space Total
3

Building

Building Type
Row / Townhouse
Square Footage
1272 sqft
Bathrooms Total
3
Bedrooms Total
3
Amenities
Golf Course, Recreation, Shopping
Fireplace Present
No
Basement Type
Crawl space (Unknown)
Basement Features
Unknown
Building Heating Type
Forced air
Heating Fuel
Natural gas
Building Cooling Type

Location