13586 Foreman Drive, Maple Ridge, British Columbia V4R 2P7

Listed for:
$1,598,000
5 beds
4 baths
Listed 44 days ago
House for rent: 13586 Foreman Drive, Maple Ridge, British Columbia V4R 2P7

View all 5 photos

Learn more about this property
Listing provided by:
RE/MAX LIFESTYLES REALTY
MLS® number:
R3055124
Agent:
Matthew Hayes
*Indicates required field
Name is required
Email is required
Please enter a valid phone number (e.g., 416-111-1111).

About

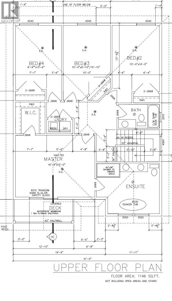
Welcome to Silver Ridge West. A Scott Charlton Construction home built on 4,4007 sqft Lot that backs onto greenbelt. This 3,395 sqft home features 5 bedrooms and 3.5 bathrooms. On the Main floor a spacious open concept plan with a covered deck with a covered deck on the rear of the home. Upstairs features 4 bedrooms and the laundry room. In the Primary Bedroom, a spacious Primary Ensuite and Walk-in-closet awaiting with a covered deck off the front of the home. In the basement, there is a one bedroom legal suite with its own separate patio. Please inquire with The Hayes Team for full set of floor plans. (id:27476)

Property Highlights

MLS® Number
R3055124
Type
Single Family
Ownership Type
Freehold
Land Size
4007 sqft
Parking Space Total
4

Building

Building Type
House
Square Footage
3395 sqft
Bathrooms Total
4
Bedrooms Total
5
Amenities
Recreation
Fireplace Present
Yes
Basement Type
Full (Unknown)
Basement Features
Unknown
Building Heating Type
Forced air
Heating Fuel
Building Cooling Type

Location