23004 Dewdney Trunk Road, Maple Ridge, British Columbia V2X 3L1

Listed for:
$2,250,000
0 beds
0 baths
Listed 173 days ago
23004 Dewdney Trunk Road, Maple Ridge, British Columbia V2X 3L1

View all 14 photos

About

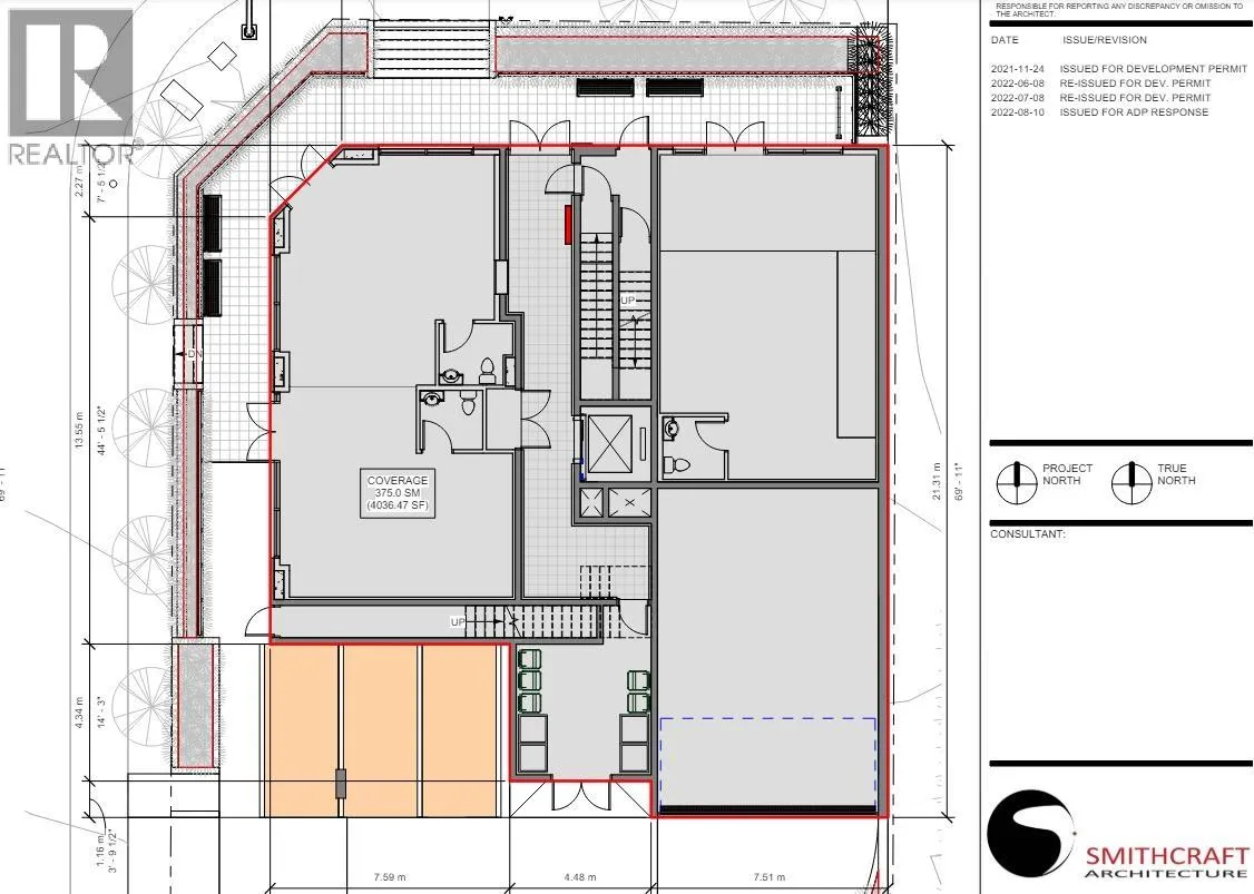
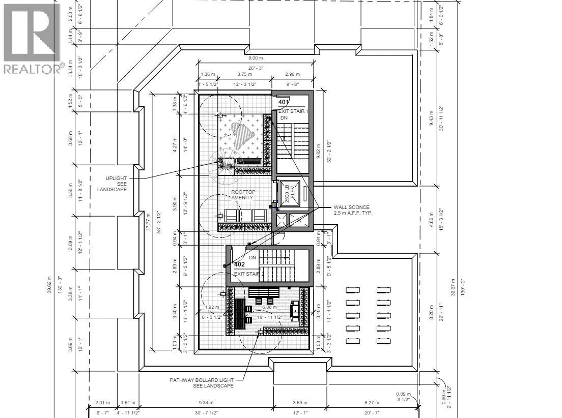
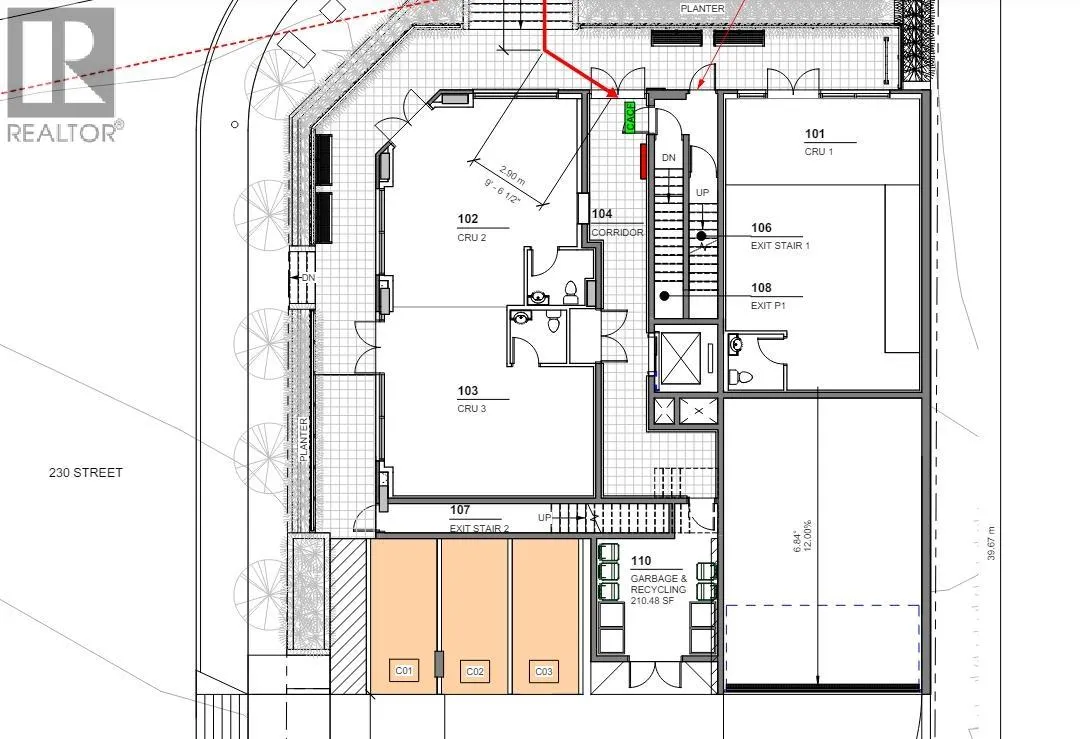
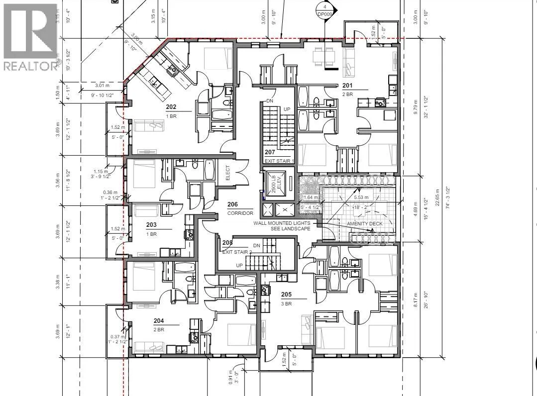
WHAT A LOCATION! 13 unit new building South East corner of Dewdney Trunk Road & 230th Street in Maple Ridge. 2 road frontages and the property slopes gently to the north. Looking at a commercial zone. Across the street from Tim Horton's and Maple Ridge Eye Care. The plans are with the City of Maple Ridge for building permit. The current plan is 3 commercial units on the main, 10 residential units on the 2nd and 3rd floors with 4 x 1 bedroom, 4 x 2 bedroom and 2 x 3 bedroom with 5 designated rental and 5 designated market housing. (id:27476)

Property Highlights

MLS® Number
R3057434
Type
Vacant Land
Ownership Type
Freehold
Land Size
9615 sqft

Building

Fireplace Present
No
Basement Type
Basement Features
Building Heating Type
Heating Fuel
Building Cooling Type

Location

Learn more about this property
Listing provided by:
RE/MAX LIFESTYLES REALTY
MLS® number:
R3057434
Agent:
Ron Antalek
*Indicates required field
Name is required
Email is required
Please enter a valid phone number (e.g., 416-111-1111).

Street Spotlight - For sale