12035 Glenhurst Street, Maple Ridge, British Columbia V2X 6V8

Listed for:
$1,768,800
0 beds
0 baths
Listed 40 days ago
12035 Glenhurst Street, Maple Ridge, British Columbia V2X 6V8

View all 10 photos

Learn more about this property
Listing provided by:
RE/MAX Colonial Pacific Realty
MLS® number:
R3068986
Agent:
Lana Wu
*Indicates required field
Name is required
Email is required
Please enter a valid phone number (e.g., 416-111-1111).

About

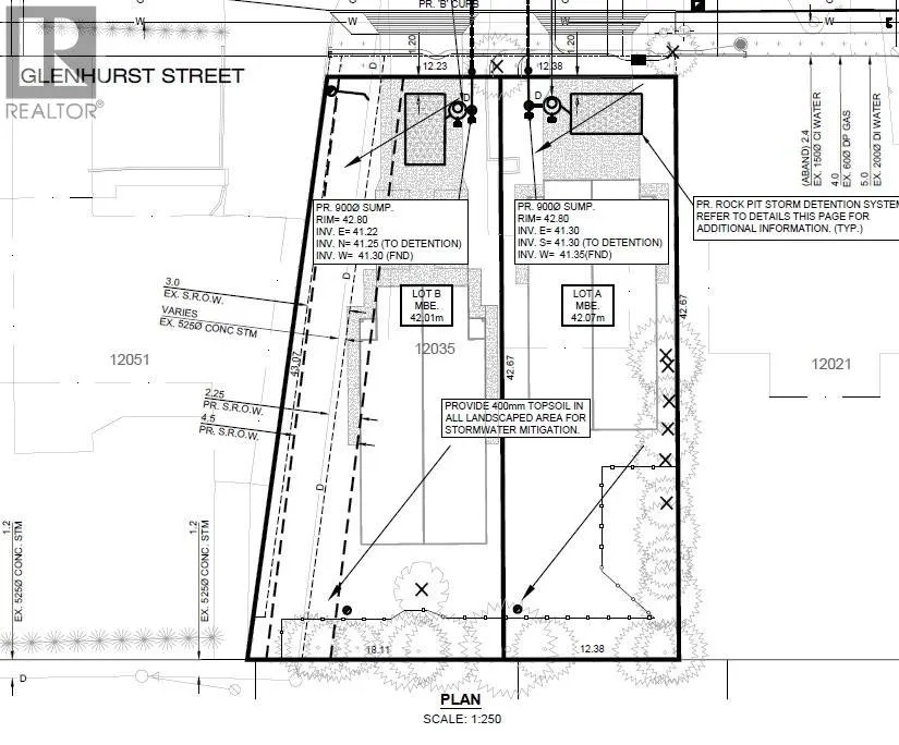
Outstanding 12,200 SQFT lot with PLA approval for two duplex lots! Each lot is approximately 6,000 SQFT, with all engineering work and professionally designed architectural floor plans for two modern duplexes already completed-saving you significant time and preparation costs. The approved plans feature four impressive units, each offering approx. 2,096 SQFT across three well-designed levels, complete with 5 bedrooms, 4 bathrooms, a legal suite, and 2 parking spaces. Ideally located in one of the area´s most desirable and serene neighbourhoods, this property is just steps from essential amenities, top-rated schools, beautiful parks, and convenient access to major highways. Option available to purchase one duplex lot individually. A rare opportunity perfect for builders, investors, or multi-generational families. CALL NOW FOR DETAILS! (id:27476)

Property Highlights

MLS® Number
R3068986
Type
Vacant Land
Ownership Type
Freehold
Land Size
12600 sqft

Building

Amenities
Shopping
Fireplace Present
No
Basement Type
Basement Features
Building Heating Type
Heating Fuel
Building Cooling Type

Location