25700 116 Avenue, Maple Ridge, British Columbia V4R 1Z6

Listed for:
$1,699,900
4 beds
3 baths
Listed 10 days ago
House for rent: 25700 116 Avenue, Maple Ridge, British Columbia V4R 1Z6

View all 40 photos

About

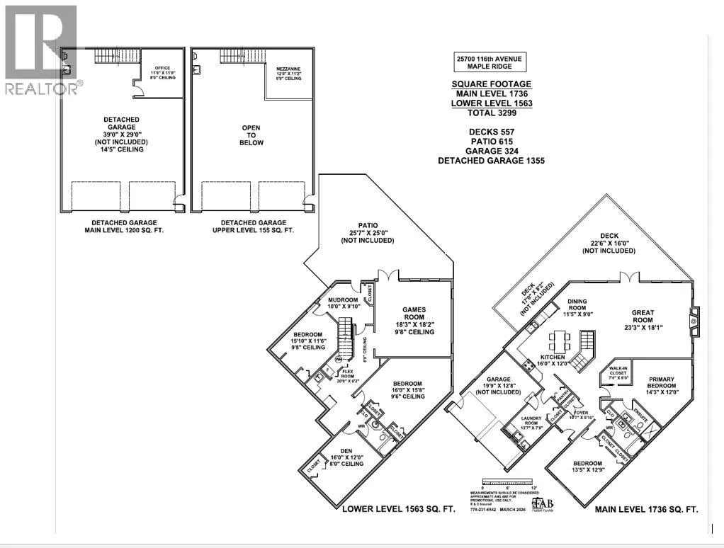
Spacious family home in the quiet community of Websters Corners. Set on a private SOUTH 1.11-acre lot backing onto Kanaka Creek Regional Park, this property offers space, privacy, and flexibility. Open-concept kitchen and living plan, accented by durable slate flooring and a striking custom stone fireplace. 4 bedrooms and 3 bathrooms with 2 bedrooms up and 2 & den down, including a main-floor primary with walk-in closet and ensuite. The walk-out basement offers great potential for extended family or a future suite. Large games room, covered patio area. New windows, new hot water tank, and poly-B plumbing replaced add peace of mind. The large detached shop with 240V power, heated office, & mezzanine is perfect for vehicles, hobbies, or storage. A rare acreage opportunity close to town (id:27476)

Property Highlights

MLS® Number
R3107486
Type
Single Family
Ownership Type
Freehold
Land Size
1.11 ac
Parking Space Total
10

Building

Building Type
House
Storeys
1.00
Square Footage
3299 sqft
Bathrooms Total
3
Bedrooms Total
4
Amenities
Laundry - In Suite Recreation
Fireplace Present
Yes
Basement Type
Full (Finished)
Basement Features
Unknown
Building Heating Type
Forced air
Heating Fuel
Natural gas
Building Cooling Type

Location

Learn more about this property
Listing provided by:
Coldwell Banker Executives Realty
MLS® number:
R3107486
Agent:
Bianca Myddleton
*Indicates required field
Name is required
Email is required
Please enter a valid phone number (e.g., 416-111-1111).

Street Spotlight - For sale