274 Merryman Drive, Mayne Island, British Columbia V0N 2J2

Listed for:
$688,000
2 beds
1 baths
Listed 53 days ago
House for rent: 274 Merryman Drive, Mayne Island, British Columbia V0N 2J2

View all 40 photos

About

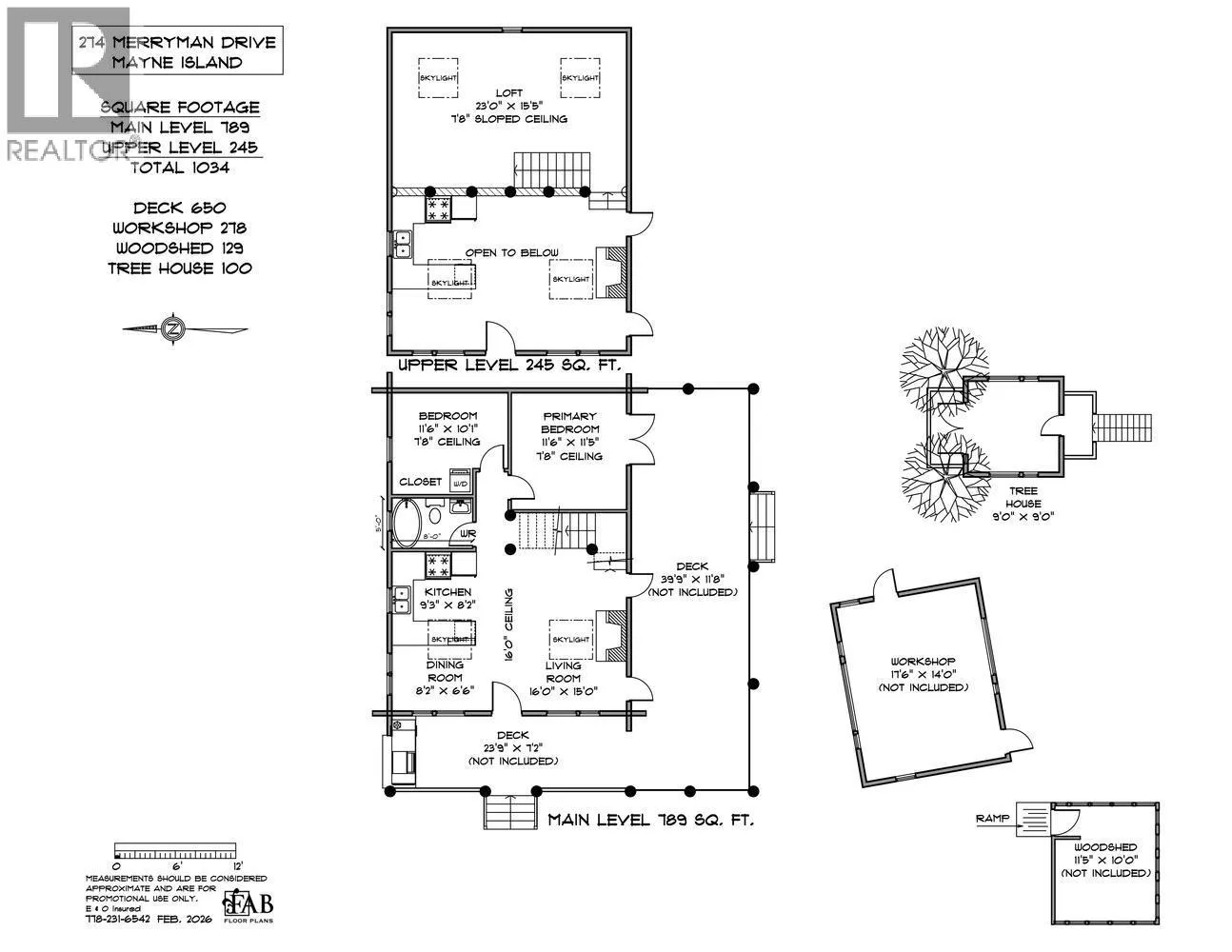
This private retreat sits on 0.67 acres on Mayne Island, one of BC´s Southern Gulf Islands, accessible by BC Ferries and known for its quiet, natural beauty and small waterfront community. The 2003-built 1.5-storey log cabin offers 2 bedrooms plus an open loft ideal as a third sleeping area or family space, and one full 4-piece bathroom. Features include a wrap-around deck with built-in BBQ and covered rear storage. Outbuildings include a wired workshop (278 sq. ft.), a special woodshed (129 sq. ft.), and a wired tree house (100 sq. ft.), all surrounded by forested privacy. (id:27476)

Property Highlights

MLS® Number
R3089173
Type
Single Family
Ownership Type
Freehold
Land Size
29185 sqft
Parking Space Total
6

Building

Building Type
House
Square Footage
1034 sqft
Bathrooms Total
1
Bedrooms Total
2
Amenities
Guest Suite Shopping
Fireplace Present
Yes
Basement Type
Crawl space (Unknown)
Basement Features
Unknown
Building Heating Type
Radiant heat
Heating Fuel
Electric
Building Cooling Type

Location

Learn more about this property
Listing provided by:
RE/MAX LIFESTYLES REALTY
MLS® number:
R3089173
Agent:
R.p. Luke
*Indicates required field
Name is required
Email is required
Please enter a valid phone number (e.g., 416-111-1111).