1552 Garcia Street, Merritt, British Columbia V1K 1B8

Listed for:
$354,900
3 beds
1 baths
Listed 71 days ago
House for rent: 1552 Garcia Street, Merritt, British Columbia V1K 1B8

View all 68 photos

Learn more about this property
Listing provided by:
eXp Realty (Kamloops)
MLS® number:
10361995
Agent:
Penny Turko
*Indicates required field
Name is required
Email is required
Please enter a valid phone number (e.g., 416-111-1111).

About

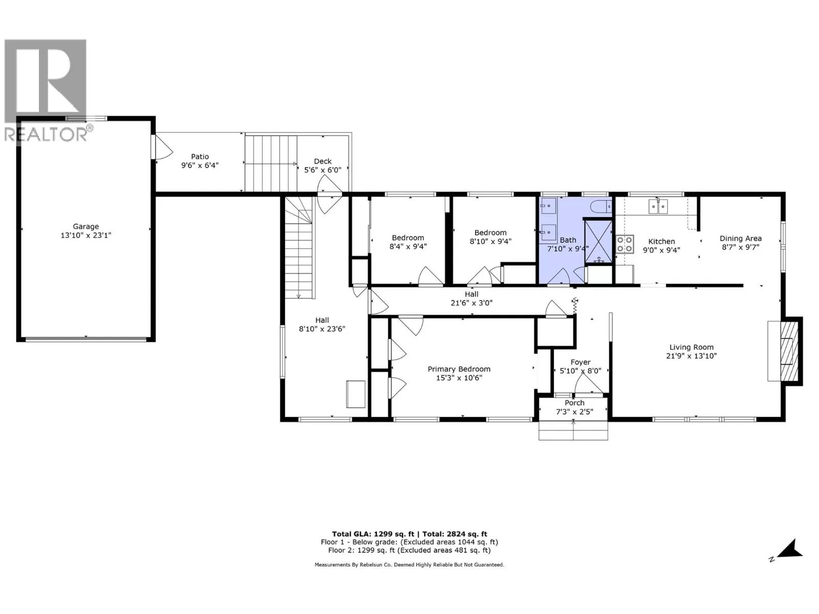
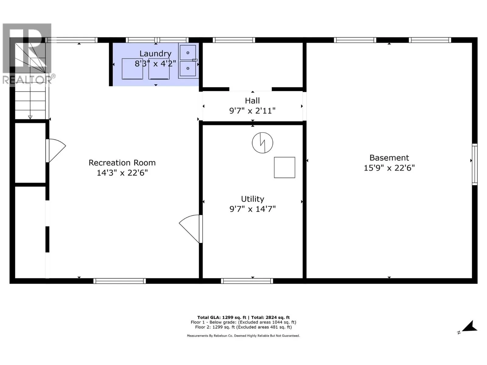
Step back in time with this vintage 1955 home, located just steps from Merritt’s downtown core. With 1,290 sq. ft. on the main and 956 sq. ft. of unfinished basement, this property is a true time capsule, ready to be restored to its former glory. Owned by the same family since 1970, it was once the heart of neighborhood gatherings. Original features remain, from the wood sliding room divider and original kitchen to the retro charm of the living room with its cozy gas fireplace. You can almost picture family gatherings around the kitchen table. The main floor offers 3 bedrooms, 1 updated bath with a double sink vanity and a walk-in shower, a spacious living room, vintage kitchen, and a hobby/office room which could double as a mud room. The basement is an open canvas awaiting your ideas. A single garage with loft storage adds practicality, while the generous lot allows space to build a shop or accessory building. New Nat Gas furnace & HWT 2022. 100 Amp Electrical Panel. Single, wired detached garage. Perfectly situated, this home is just 1 block from the elementary school, Clay Banks Park, and the Coldwater River, a place where children can play and swim all summer long. The location also offers unbeatable convenience with Save-On-Foods, the Railyard Mall, restaurants, library, and more just around the corner. Bring your vision and creativity! This well-loved home is ready for its next chapter. * All measurements are approximate. Verify if deemed important. (id:27476)

Property Highlights

MLS® Number
10361995
Type
Single Family
Ownership Type
Freehold
Land Size
0.14 ac|under 1 acre
Parking Space Total
3

Building

Building Type
House
Storeys
1.00
Square Footage
1290 sqft
Bathrooms Total
1
Bedrooms Total
3
Amenities
Public Transit, Park, Schools, Shopping
Exterior Finish
Aluminum
Fireplace Present
Yes
Basement Type
Basement Features
Building Heating Type
Forced air, See remarks
Heating Fuel
Building Cooling Type

Utilities

Water
Municipal water
Utility Sewer
Municipal sewage system

Room Layout

Utility room
Basement
15' x 8'8''
Laundry room
Basement
7'8'' x 4'
Office
Main level
13'4'' x 8'5''
Foyer
Main level
5' x 5'
Bedroom
Main level
9'4'' x 8'8''
Bedroom
Main level
9'4'' x 8'8''
4pc Bathroom
Main level
9'4'' x 8'
Primary Bedroom
Main level
15'8'' x 10'
Dining room
Main level
9'4'' x 7'8''
Living room
Main level
17'6'' x 13'4''
Kitchen
Main level
9'4'' x 8'2''

Location