4705 Barrow Rd, Metchosin, British Columbia V9C 4C6

Listed for:
$1,295,000
4 beds
3 baths
Listed 77 days ago
House for rent: 4705 Barrow Rd, Metchosin, British Columbia V9C 4C6

View all 69 photos

Learn more about this property
Listing provided by:
Newport Realty Ltd.
MLS® number:
1017614
Agent:
Dirk Vanderwal
*Indicates required field
Name is required
Email is required
Please enter a valid phone number (e.g., 416-111-1111).

About

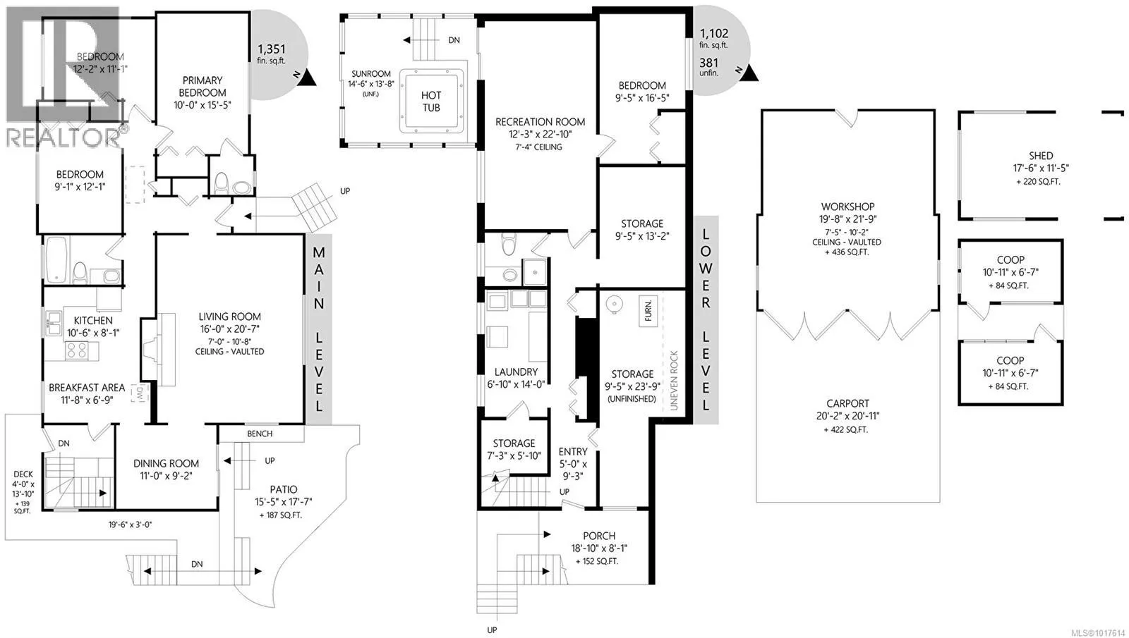
Come and discover this private Metchosin retreat, on over 2 acres of forested beauty with a seasonal stream and the timeless character of a Pan-Abode style home. With 4 bedrooms and 3 baths across approx. 2,400 sqft, this inviting family residence offers wood-clad walls, vaulted ceilings, and spaces that radiate warmth and charm. Gather in the glass-enclosed hot tub room, relax on the deck surrounded by nature, or explore the grounds and outbuildings including a powered workshop, chicken coop, shed, and firewood storage. Recent upgrades, including a heat pump, 200A electrical, and generator system bring modern comfort to this West Coast sanctuary. The property backs on to a 160 acre nature preserve, providing a feeling of endless greenery. Here, mornings start with birdsong, evenings end under starlight, and every day offers the chance to slow down and connect with what matters most. (id:27476)

Property Highlights

MLS® Number
1017614
Type
Single Family
Ownership Type
Freehold
Land Size
2.17 ac
Parking Space Total
3

Building

Building Type
House
Square Footage
2889 sqft
Bathrooms Total
3
Bedrooms Total
4
Fireplace Present
Yes
Basement Type
Basement Features
Building Heating Type
Forced air, Heat Pump
Heating Fuel
Wood
Building Cooling Type
Air Conditioned, Central air conditioning, Fully air conditioned

Location