4705 Barrow Rd, Metchosin, British Columbia V9C 4C6

Listed for:
$1,295,000
4 beds
3 baths
Listed 28 days ago
House for rent: 4705 Barrow Rd, Metchosin, British Columbia V9C 4C6

View all 67 photos

About

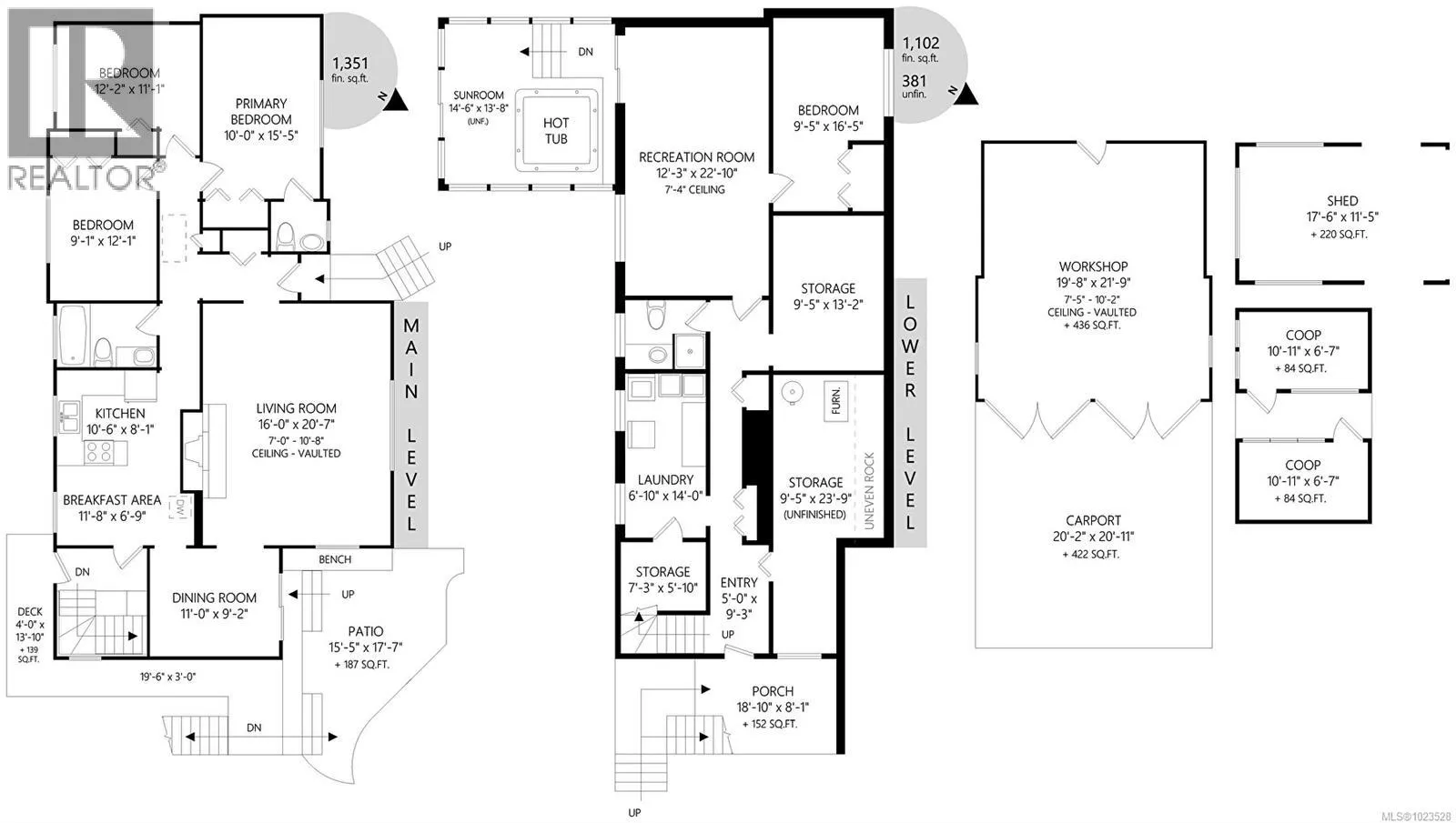
Come and discover this private Metchosin retreat, on over 2 acres of forested beauty with a seasonal stream and the timeless character of a Pan-Abode style home. With 4 bedrooms and 3 baths across approx. 2,400 sqft, this inviting family residence offers wood-clad walls, vaulted ceilings, and spaces that radiate warmth and charm. Gather in the glass-enclosed hot tub room, relax on the deck surrounded by nature, or explore the grounds and outbuildings including a powered workshop, chicken coop, shed, and firewood storage. Recent upgrades, including a heat pump, 200A electrical, and generator system bring modern comfort to this West Coast sanctuary. The property backs on to a 160 acre nature preserve, providing a feeling of endless greenery. Here, mornings start with birdsong, evenings end under starlight, and every day offers the chance to slow down and connect with what matters most. (id:27476)

Property Highlights

MLS® Number
1023528
Type
Single Family
Ownership Type
Freehold
Land Size
2.17 ac
Parking Space Total
3

Building

Building Type
House
Square Footage
2889 sqft
Bathrooms Total
3
Bedrooms Total
4
Fireplace Present
Yes
Basement Type
Basement Features
Building Heating Type
Forced air, Heat Pump
Heating Fuel
Wood
Building Cooling Type
Air Conditioned, Central air conditioning, Fully air conditioned

Location

Learn more about this property
Listing provided by:
Newport Realty Ltd.
MLS® number:
1023528
Agent:
Dirk Vanderwal
*Indicates required field
Name is required
Email is required
Please enter a valid phone number (e.g., 416-111-1111).