9921 Watt Street, Mission, British Columbia V2V 0B6

Listed for:
$1,598,000
3 beds
2 baths
Listed 41 days ago
House for rent: 9921 Watt Street, Mission, British Columbia V2V 0B6

View all 40 photos

About

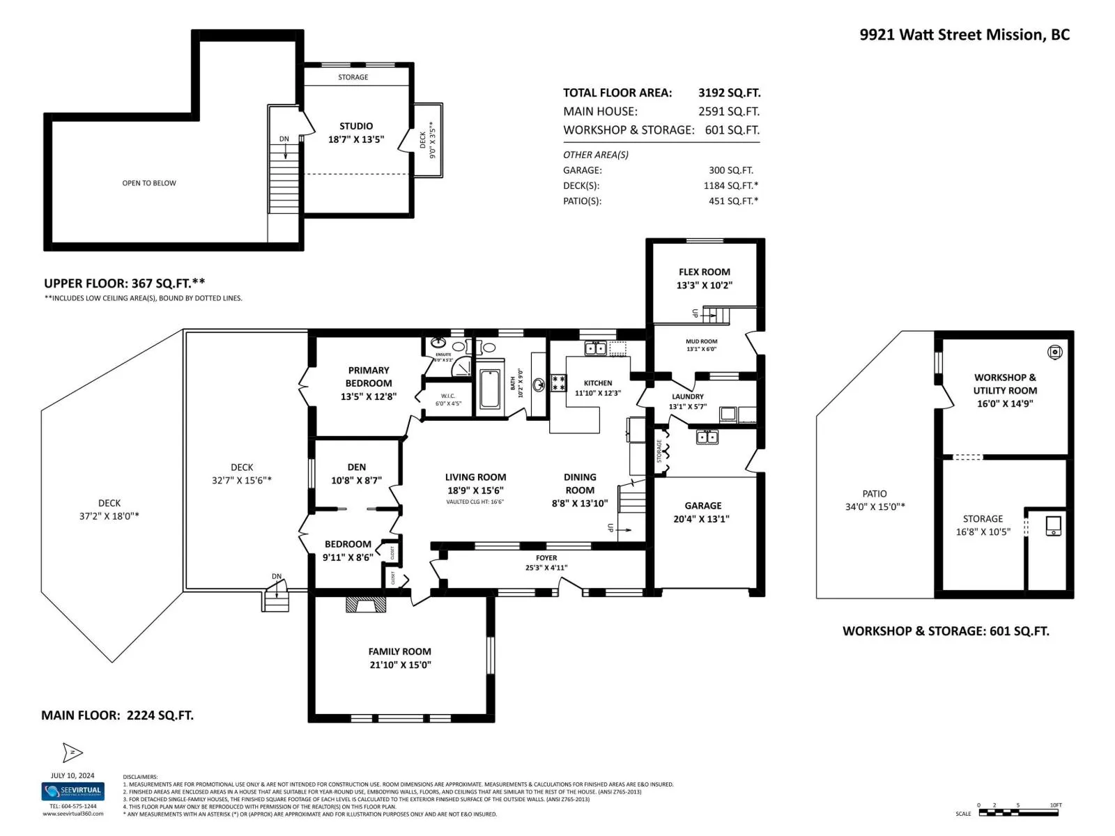
Tucked away at the end of a quiet street, this custom, spruce log home sits on 2.3 acres. Surrounded by nature, this one-of-a-kind property offers the ultimate escape, yet only 10 minutes from Downtown Mission! Whether you love to entertain or simply unwind in peace, this home has it all: sprawling decks and patios, lush gardens, an in-ground pool, your own orchard, and even a charming chicken coop. Explore the creek, play in the open yard, or host unforgettable gatherings in this truly magical setting. Step inside and be captivated by the warmth and character throughout. The rock fireplace anchors the cozy family room, a perfect spot to curl up with a book or gather with friends. The open living and dining spaces flow seamlessly into a beautifully renovated kitchen, while a Hemlock-railed staircase leads to a versatile loft space - ideal for a bedroom, rec room, or creative studio. Add in a flex room and you've got endless possibilities for work, play, or guests. This is more than a home, its a lifestyle. (id:27476)

Property Highlights

MLS® Number
R3091695
Type
Single Family
Ownership Type
Freehold
Land Size
100853 sqft
Parking Space Total
6

Building

Building Type
House
Square Footage
3192 sqft
Bathrooms Total
2
Bedrooms Total
3
Fireplace Present
Yes
Basement Type
Partial (Partially finished)
Basement Features
Separate entrance
Building Heating Type
Baseboard heaters, Forced air
Heating Fuel
Building Cooling Type

Utilities

Water
Drilled Well

Location

Learn more about this property
Listing provided by:
eXp Realty
MLS® number:
R3091695
Agent:
Sandra Wyant
*Indicates required field
Name is required
Email is required
Please enter a valid phone number (e.g., 416-111-1111).