32020 Lougheed Highway, Mission, British Columbia V2V 1A4

Listed for:
$4,499,000
0 beds
0 baths
Listed 74 days ago
32020 Lougheed Highway, Mission, British Columbia V2V 1A4

View all 31 photos

About

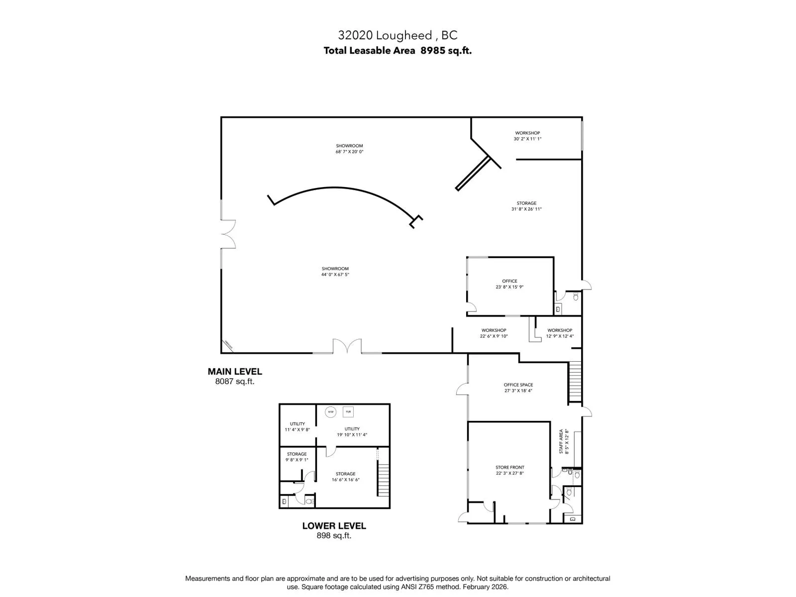
Prime commercial opportunity in the heart of Mission. This almost 9,000 sqft building offers 3 separate storefront units, all with excellent street exposure and direct access. Currently tenanted by a furniture store, CUPE office space, and an additional retail business, the property provides strong income potential and flexibility for investors or owner-users. Unit A, the largest at approximately 6,670 sqft, features an expansive showroom, workshop areas, and dedicated office space, plus an additional 898 sqft basement for convenient storage. Positioned on the high-visibility corner of Lougheed Highway and Wren Street, surrounded by established businesses and along a major commuter route, this property also presents exciting future development potential, including mixed-use commercial with residential above or expanded commercial opportunities (subject to municipal approvals). CH2 Zoning. A strategic investment in a growing community with both immediate income and long-term redevelopment possibilities. (id:27476)

Property Highlights

MLS® Number
C8076727
Type
Retail

Building

Amenities
Air Conditioning, Storefront
Fireplace Present
No
Basement Type
Basement Features
Building Heating Type
Heating Fuel
Building Cooling Type

Location

Learn more about this property
Listing provided by:
RE/MAX City Realty
MLS® number:
C8076727
Agent:
Eugene Knoedler
*Indicates required field
Name is required
Email is required
Please enter a valid phone number (e.g., 416-111-1111).

Street Spotlight - For sale