880 Hecate St, Nanaimo, British Columbia V9R 4K6

Listed for:
$614,000
0 beds
0 baths
Listed 242 days ago
Commercial Mix for rent: 880 Hecate St, Nanaimo, British Columbia V9R 4K6

View all 7 photos

About

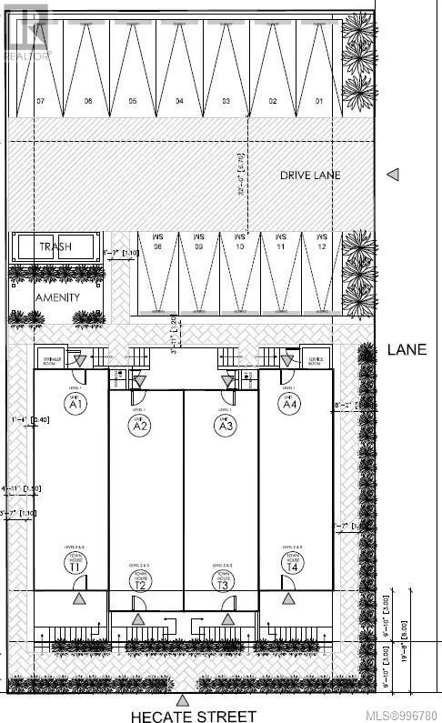
Prime Development Opportunity in South Nanaimo Located within walking distance from downtown Nanaimo, this exceptional property presents a unique investment opportunity. Currently, the property includes a commercial space on the main floor and a 2-bedroom rental suite above, providing immediate rental income. What truly sets this property apart is the approved development permit for a Craftsman-inspired, 2.5-story ''missing middle'' housing project. Plans include four 1-bedroom and four 2-bedroom units, many featuring rooftop balcony access. This provides a fantastic opportunity for a developer to create a modern, high-demand multifamily property in a prime location. Don't miss this chance to invest in a property that offers both immediate returns and future development potential. All Measurements Approx. Verify if Important. (id:27476)

Property Highlights

MLS® Number
996780
Type
Other
Ownership Type
Freehold
Land Size
9405 sqft

Building

Building Type
Commercial Mix
Fireplace Present
No
Basement Type
Basement Features
Building Heating Type
Heating Fuel
Electric
Building Cooling Type

Location

Learn more about this property
Listing provided by:
REMAX Professionals (NA)
MLS® number:
996780
Agent:
Kelly Whitton
*Indicates required field
Name is required
Email is required
Please enter a valid phone number (e.g., 416-111-1111).