6593 Kestrel Cres, Nanaimo, British Columbia V9V 1V9

Listed for:
$1,159,000
6 beds
4 baths
Listed 149 days ago
House for rent: 6593 Kestrel Cres, Nanaimo, British Columbia V9V 1V9

View all 62 photos

About

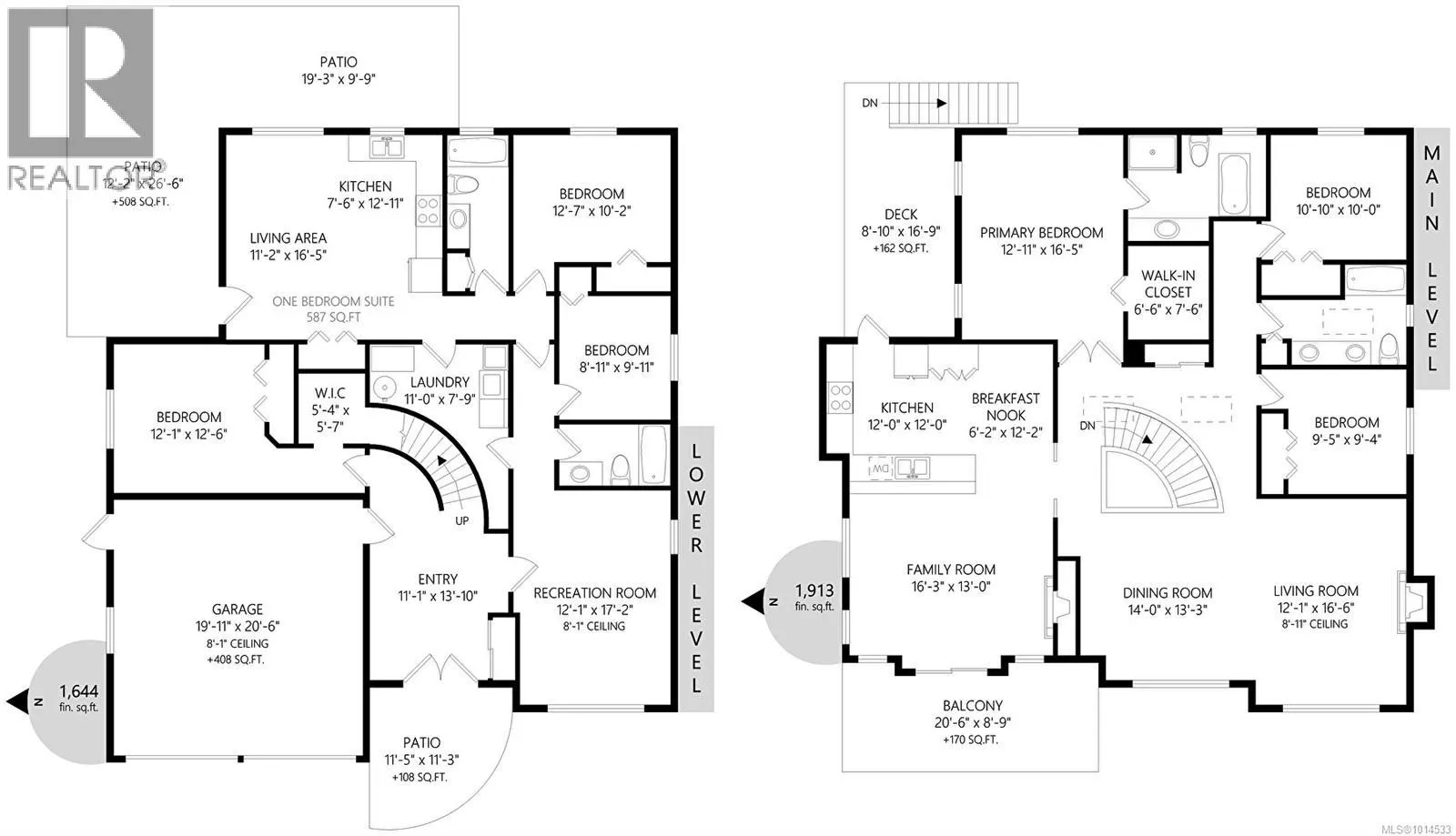
Beautiful 6 bedroom, 4 bathroom well-maintained nice ocean view home with suite situated desirable North Nanaimo. Within walking distance to the schools & excellent amenities making this a sought-after location in the area. Main level provides living room with gas fireplace, dining room, big family room with gas fireplace and access to the ocean view front deck, nice eating nook, kitchen offers gas stove and heading a door to the back deck for BBQ area with gas connector, primary bedroom with walk-in closet & 4pc ensuite includes jetted tub, another two bedroom plus a5pc bathroom. Downstairs provide one bedroom in-law suite, another two bedrooms & large recreation room, the 4th 4pc bathroom. Other features include all brand new : roof, 4 pcs skylights, hot water heater; New toilet in the primary bedroom, the portable cooling unit in primary bedroom will be kept, 4 years stainless steel appliance in the kitchen, some new fence. Nice location & MUST SEE (id:27476)

Property Highlights

MLS® Number
1014533
Type
Single Family
Ownership Type
Freehold
Land Size
6459 sqft
Parking Space Total
5

Building

Building Type
House
Square Footage
3965 sqft
Bathrooms Total
4
Bedrooms Total
6
Fireplace Present
Yes
Basement Type
Basement Features
Building Heating Type
Forced air
Heating Fuel
Building Cooling Type
None

Location

Learn more about this property
Listing provided by:
Sutton Group-West Coast Realty (Nan)
MLS® number:
1014533
Agent:
Hunter Yu
*Indicates required field
Name is required
Email is required
Please enter a valid phone number (e.g., 416-111-1111).