1089 College Dr, Nanaimo, British Columbia V9R 5X3

Listed for:
$1,249,900
4 beds
4 baths
Listed 37 days ago
House for rent: 1089 College Dr, Nanaimo, British Columbia V9R 5X3

View all 71 photos

Learn more about this property
Listing provided by:
Royal LePage Parksville-Qualicum Beach Realty (PK)
MLS® number:
1017304
Agent:
Kellie Simpatico
*Indicates required field
Name is required
Email is required
Please enter a valid phone number (e.g., 416-111-1111).

About

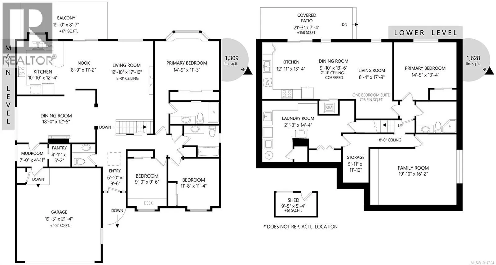
Welcome to this beautifully updated main-level entry home in desirable College Heights. Experience breathtaking, panoramic views of Departure Bay, the Salish Sea, downtown Nanaimo & coastal mountains. Ideal for couples or families, the main floor features a spacious primary bedroom & updated ensuite with walk-in shower. Two additional bedrooms & an updated family bath. Entertain with ease in the formal dining room featuring an electric, stone facing fireplace, cozy living room, breakfast nook, & great kitchen including stone countertops & stainless steel appliances. Closed-in mudroom & walk-in pantry. Downstairs offers lots of finished storage, a large family room & laundry/hobby space with wood fireplace. Newer one bedroom suite (unauthorised) complete with laundry & a view! Currently running as a successful Airbnb. Outside features lots of parking, seperate storage shed, landscaping lighting & built-in irrigation. Enjoy island living with stunning views from every window. Come see it (id:27476)

Property Highlights

MLS® Number
1017304
Type
Single Family
Ownership Type
Freehold
Land Size
8712 sqft
Parking Space Total
6

Building

Building Type
House
Square Footage
3662 sqft
Bathrooms Total
4
Bedrooms Total
4
Fireplace Present
Yes
Basement Type
Basement Features
Building Heating Type
Baseboard heaters, Heat Pump
Heating Fuel
Building Cooling Type
Air Conditioned

Location