5667 Carrington Rd, Nanaimo, British Columbia V9T 6C3

Listed for:
$909,000
4 beds
3 baths
Listed 77 days ago
House for rent: 5667 Carrington Rd, Nanaimo, British Columbia V9T 6C3

View all 37 photos

Learn more about this property
Listing provided by:
One Percent Realty Ltd.
MLS® number:
1017548
Agent:
Karelyn Campbell
*Indicates required field
Name is required
Email is required
Please enter a valid phone number (e.g., 416-111-1111).

About

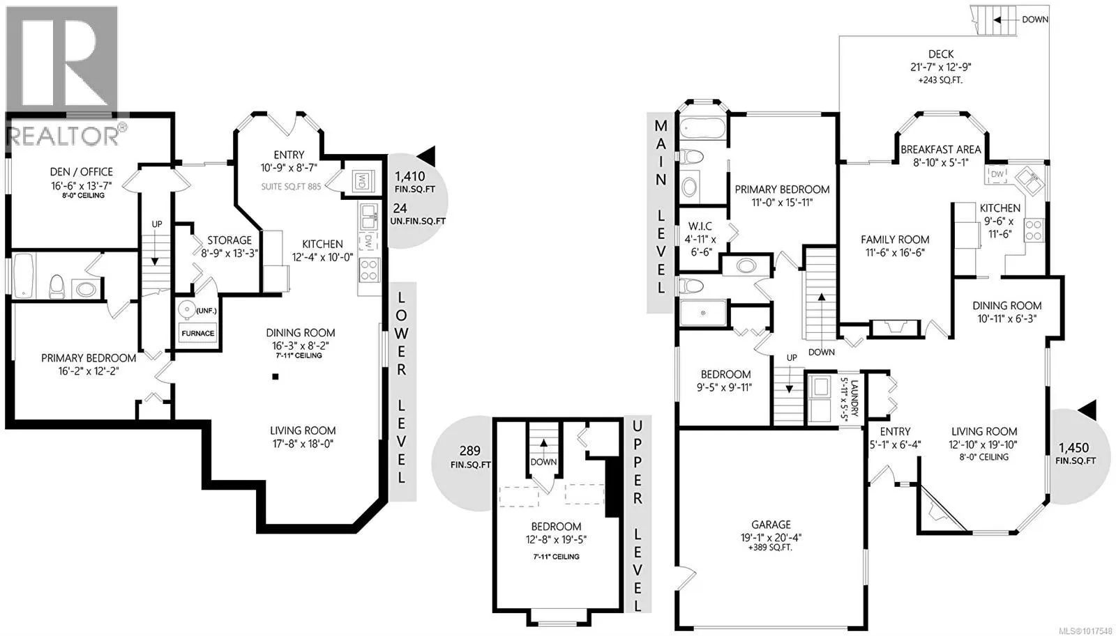
4-bedroom + den home with a legal suite in desirable North Nanaimo. The main level offers a bright, spacious living room with a gas fireplace, a formal dining area, and a functional kitchen with stainless appliances, a breakfast nook, and an adjoining family room featuring a second gas fireplace. A deck off the kitchen provides access to the fully fenced backyard with fruit trees. An additional bedroom above the garage, plus a den and storage room, complete the main portion of the home. The lower level includes a large one-bedroom legal suite with a separate entrance and its own washer and dryer—ideal for extended family or as a mortgage helper. Situated on a generous lot within walking distance to Randerson Ridge Elementary, Dover Bay Secondary, amenities and recreation, this home offers both comfort and convenience in one of Nanaimo’s most sought-after neighbourhoods. (id:27476)

Property Highlights

MLS® Number
1017548
Type
Single Family
Ownership Type
Freehold
Land Size
7933 sqft
Parking Space Total
4

Building

Building Type
House
Square Footage
3562 sqft
Bathrooms Total
3
Bedrooms Total
4
Fireplace Present
Yes
Basement Type
Basement Features
Building Heating Type
Baseboard heaters, Forced air
Heating Fuel
Electric, Natural gas
Building Cooling Type
None

Location