451 Albert St, Nanaimo, British Columbia V9R 2V9

Listed for:
$13
0 beds
0 baths
Listed 29 days ago
Commercial Mix for rent: 451 Albert St, Nanaimo, British Columbia V9R 2V9

View all 14 photos

About

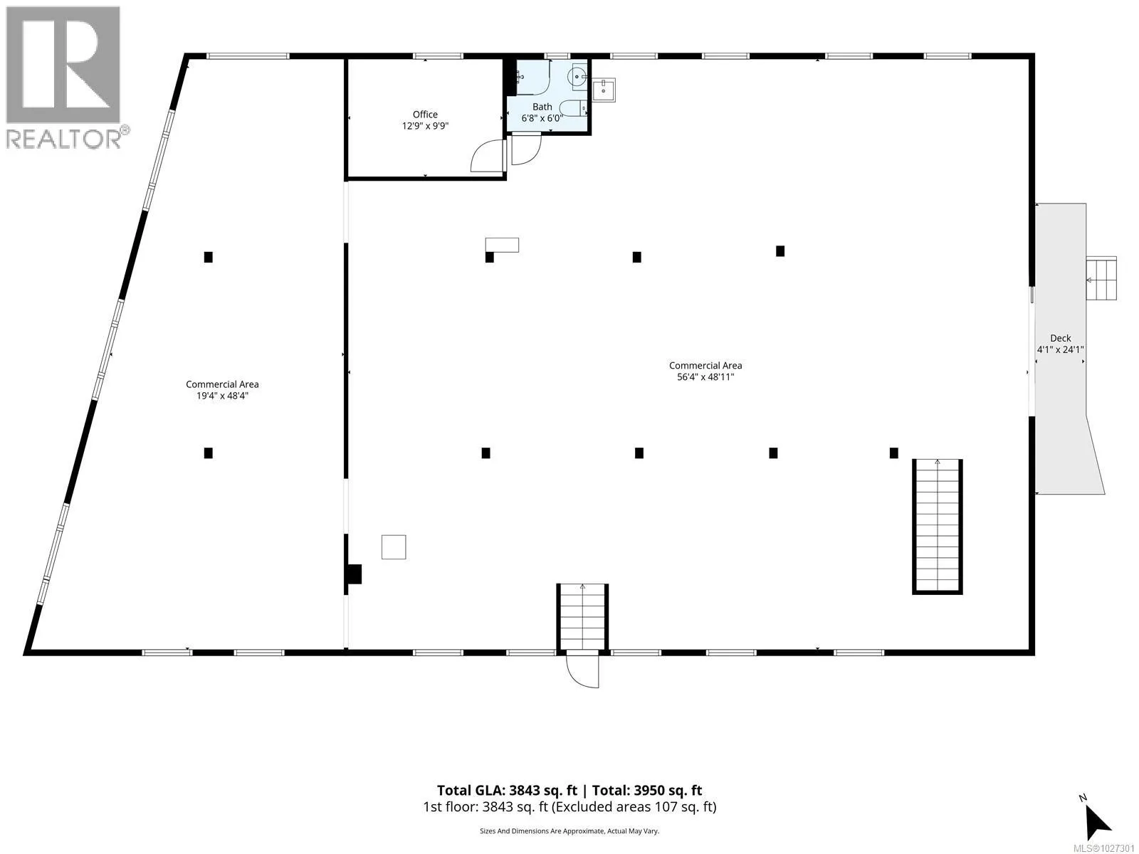
Prime upper-floor commercial space offering 3,880 Sq. Ft. with 9'3'' Ceiling. in a well-constructed DT8-zoned building. Flexible open layout suitable for professional offices, education, studio, retail showroom, service businesses, or light warehouse use. (Tenant to verify with the city of Nanaimo for permitted use) Features include gas forced-air heating, washroom, 3-phase power. Side private entrance & Rear paved parking plus loading dock access provide convenience for staff and deliveries. Excellent central location just blocks to downtown amenities and close to BC Ferries, Hullo Ferry, Seaplane Terminal, and Helijet to Vancouver. Strong accessibility and exposure. Immediate availability (id:27476)

Property Highlights

MLS® Number
1027301
Type
Other
Ownership Type
Freehold
Land Size
11160 sqft

Building

Building Type
Commercial Mix
Fireplace Present
No
Basement Type
Basement Features
Building Heating Type
Forced air
Heating Fuel
Natural gas
Building Cooling Type

Location

Learn more about this property
Listing provided by:
REMAX Professionals (NA)
MLS® number:
1027301
Agent:
Moin Edraki
*Indicates required field
Name is required
Email is required
Please enter a valid phone number (e.g., 416-111-1111).