12 3250 Ross Rd, Nanaimo, British Columbia V9T 2S4

Listed for:
$550,000
2 beds
3 baths
Listed 26 days ago
Row / Townhouse for rent: 12 3250 Ross Rd, Nanaimo, British Columbia V9T 2S4

View all 72 photos

About

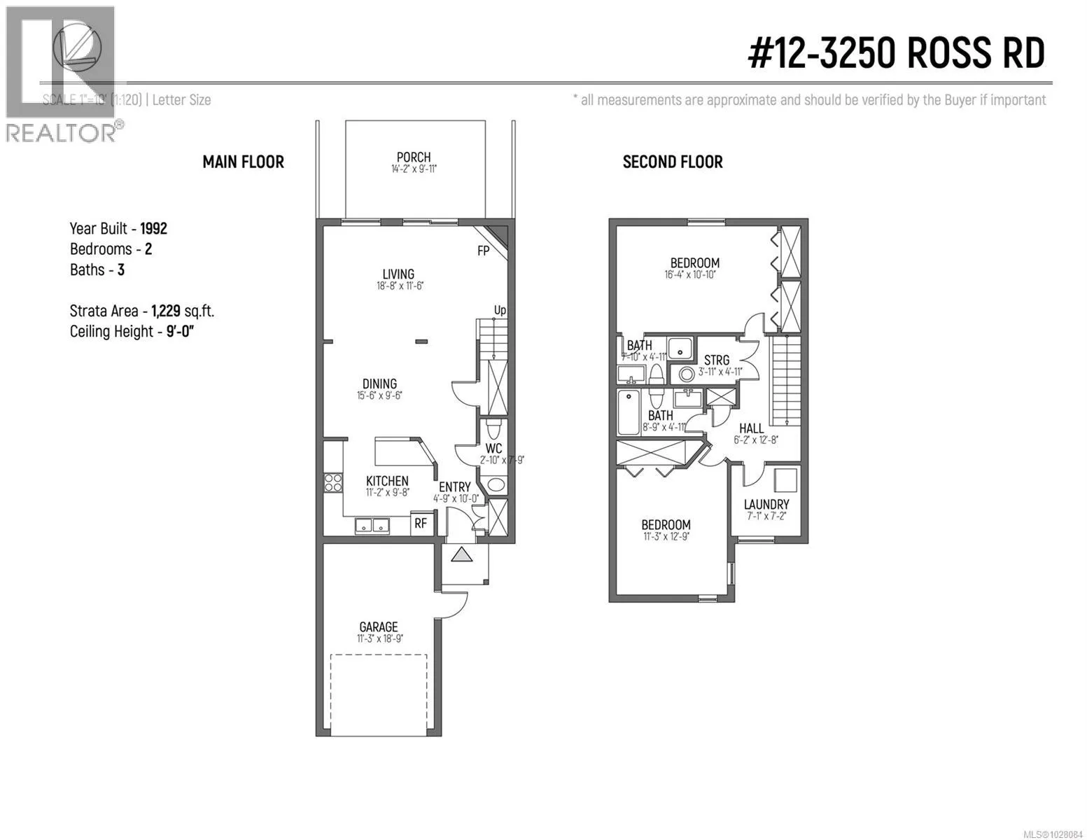
Updated throughout, this beautifully renovated 2-bedroom, 3-bathroom townhome is in like-new condition and ideally located in a central area within walking distance to Country Club Mall and beautiful Long Lake Beach. Enjoy the convenience of nearby schools, parks, and scenic hiking trails, making this an excellent location for both outdoor enthusiasts and everyday living. Upon entering the home, you’ll immediately notice the bright and inviting open-concept main level. The updated kitchen features stylish stone countertops, stainless steel appliances, and ample workspace, making it perfect for preparing meals while staying connected with family and friends in the adjoining living and dining areas. Sliding glass doors lead to your private patio, creating a great space for relaxing or enjoying outdoor dining. A convenient 2-piece bathroom completes the main floor. Upstairs, you will find two spacious bedrooms, an enormous storage room, and a laundry room. The primary bedroom has a lovely view of green space and includes its own 3-piece ensuite, while the main bathroom features a full tub and shower combination for family and guests. This home also includes the added benefit of your own garage, providing both secure parking and additional storage. Pets and rentals (with limits) are allowed, making this property an excellent opportunity whether you’re looking for a comfortable place to call home or a solid investment property in a sought-after location. Don’t miss your chance to view this move-in-ready townhome in a fantastic central location. Book your showing today! All measurements are approximate and should be verified if important. (id:27476)

Property Highlights

MLS® Number
1028084
Type
Single Family
Maintenance Fee
491.36
Ownership Type
Strata
Parking Space Total
8

Building

Building Type
Row / Townhouse
Square Footage
1229 sqft
Bathrooms Total
3
Bedrooms Total
2
Fireplace Present
Yes
Basement Type
Basement Features
Building Heating Type
Baseboard heaters
Heating Fuel
Building Cooling Type
None

Location

Learn more about this property
Listing provided by:
eXp Realty (NA)
MLS® number:
1028084
Agent:
Scott Lissa
*Indicates required field
Name is required
Email is required
Please enter a valid phone number (e.g., 416-111-1111).