309 West Gore Street Unit# Sl A, Nelson, British Columbia V1L 3G9

Listed for:
$499,900
2 beds
2 baths
Listed 32 days ago
Row / Townhouse for rent: 309 West Gore Street Unit# Sl A, Nelson, British Columbia V1L 3G9

View all 9 photos

Learn more about this property
Listing provided by:
Coldwell Banker Rosling Real Estate (Nelson)
MLS® number:
10347300
Agent:
Tad Lake
*Indicates required field
Name is required
Email is required
Please enter a valid phone number (e.g., 416-111-1111).

About

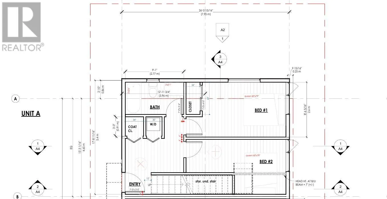
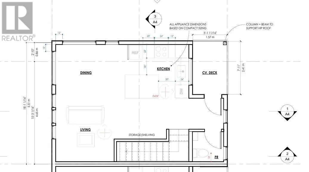
Location Location Location. 309 West Gore is designed to make the most of affordable everyday Kootenay living. Located in Rosemont, the property is an easy walk to the Downtown core, elementary schools, Junior Highschool, churches, convenience stores and Granite Pointe Golf Course. This modern design home utilizes its switched floorplan to offer a bright and open top floor living plan with 10' ceiling, contemporary flat panel and soft close cabinetry, quartz countertops, tile backsplash, energy efficient LED lighting, spc flooring, 2 pce bathroom and access to a private deck and to take advantage of the views over neighbouring homes. The Main level offers 2 comfortable bedrooms with laundry and the full size bathroom. What an investment for first time buyers, retirees, single parents or anyone looking for an affordable option to purchase a new home with a 2-5-10 warranty. This is a presale offering with construction expected to start fall 2025. (id:27476)

Property Highlights

MLS® Number
10347300
Type
Single Family
Community Name
Rosemont
Maintenance Fee
0.00
Ownership Type
Strata
Land Size
under 1 acre
Parking Space Total
1

Building

Building Type
Row / Townhouse
Storeys
2.00
Square Footage
881 sqft
Bathrooms Total
2
Bedrooms Total
2
Amenities
Golf Nearby, Public Transit, Park
Exterior Finish
Other
Fireplace Present
No
Basement Type
Basement Features
Building Heating Type
Baseboard heaters
Heating Fuel
Building Cooling Type
Central air conditioning

Utilities

Water
Municipal water
Utility Sewer
Municipal sewage system

Room Layout

Laundry room
Second level
4'0'' x 5'0''
Bedroom
Second level
10'5'' x 8'6''
Primary Bedroom
Second level
13'0'' x 8'6''
4pc Bathroom
Second level
Measurements not available
2pc Bathroom
Main level
Measurements not available
Living room
Main level
10'0'' x 9'0''
Dining room
Main level
11'0'' x 6'0''
Kitchen
Main level
11'0'' x 6'0''

Location