3230 3a Highway, Nelson, British Columbia V1L 6M7

Listed for:
$524,000
1 beds
1 baths
Listed 39 days ago
House for rent: 3230 3a Highway, Nelson, British Columbia V1L 6M7

View all 74 photos

Learn more about this property
Listing provided by:
Bennett Family Real Estate
MLS® number:
10365387
Agent:
Karen Bennett
*Indicates required field
Name is required
Email is required
Please enter a valid phone number (e.g., 416-111-1111).

About

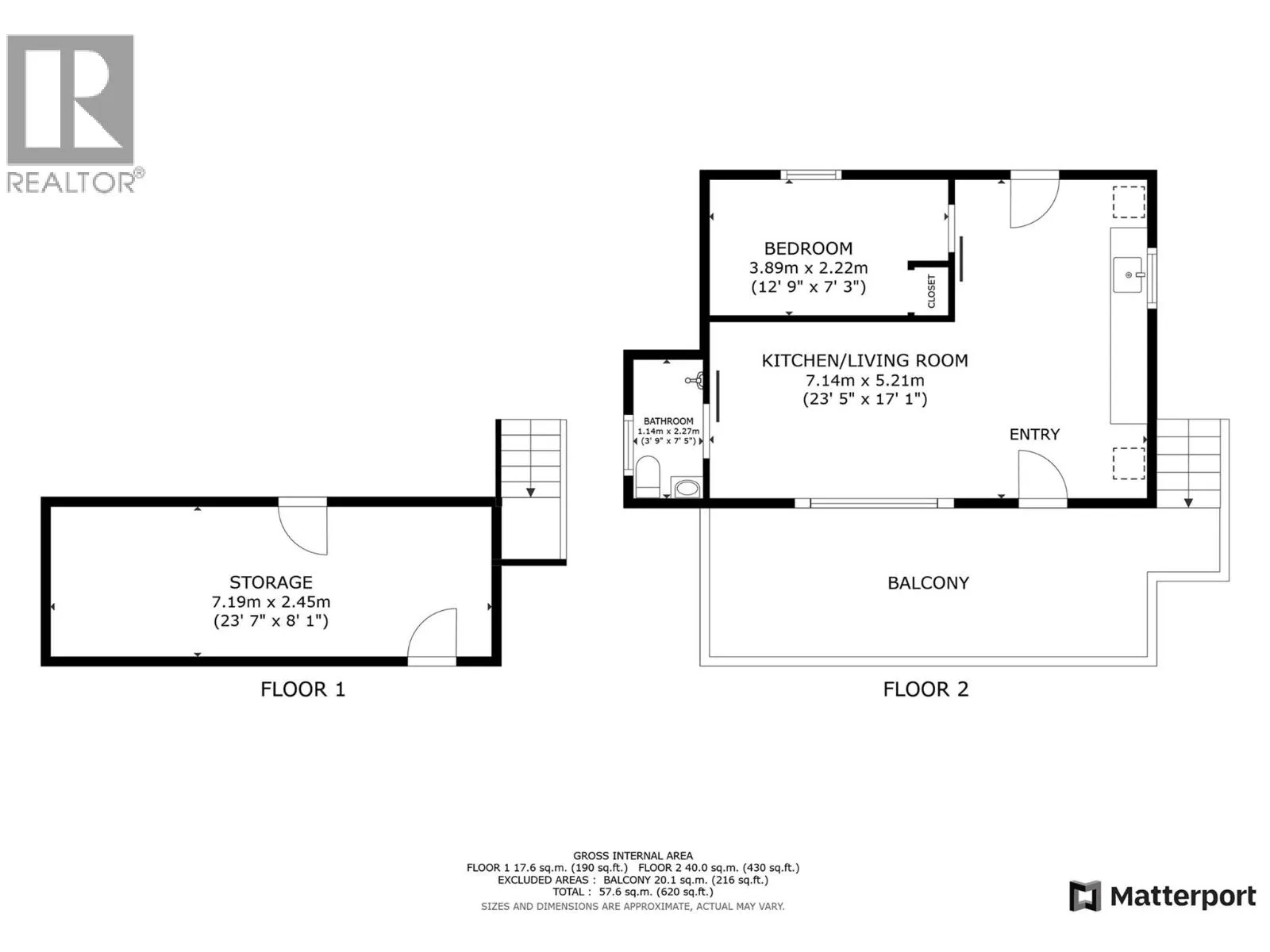
This stunning, recently renovated waterfront cabin on Kootenay Lake is the ultimate escape, offering 75 feet of pristine sandy beach just a short drive from the vibrant community of Nelson. Perfect for a seasonal getaway, compact year-round residence, or a private day-use retreat, this charming one-bedroom, one-bathroom home features a bright, open-concept layout maximizing natural light and offering breathtaking lake views through its large windows. The interior has been thoughtfully updated, boasting a brand-new kitchen complete with modern cabinetry, sleek countertops, and new appliances, as well as a fully renovated bathroom and fresh, inviting paint throughout. Comfort is assured year-round with forced air heating, ensuring you can enjoy the cabin's tranquility in any season. Outdoor living is a dream with a covered deck providing the perfect spot to overlook the water, and the expansive private beachfront offering endless opportunities for swimming, kayaking, or simply relaxing by the shore. This flexible property truly encapsulates Kootenay Lake living at its finest, combining convenience with peaceful, private luxury. (id:27476)

Property Highlights

MLS® Number
10365387
Type
Single Family
Ownership Type
Freehold
Land Size
0.11 ac|under 1 acre
Parking Space Total
1

Building

Building Type
House
Storeys
1.00
Square Footage
430 sqft
Bathrooms Total
1
Bedrooms Total
1
Exterior Finish
Wood
Fireplace Present
No
Basement Type
Crawl space
Basement Features
Building Heating Type
Forced air
Heating Fuel
Building Cooling Type

Utilities

Water
Lake/River Water Intake
Utility Sewer
Septic tank

Room Layout

4pc Bathroom
Main level
Measurements not available
Primary Bedroom
Main level
12'9'' x 7'3''
Living room
Main level
12'9'' x 9'10''
Kitchen
Main level
17'1'' x 10'6''

Location

Street Spotlight - For sale