6575 6 Highway, New Denver, British Columbia V0G 1S0

Listed for:
$1,649,900
1 beds
2 baths
Listed 14 days ago
House for rent: 6575 6 Highway, New Denver, British Columbia V0G 1S0

View all 93 photos

About

Beautiful 3.5+ acre dream-like waterfront property with 275 feet of gorgeous shoreline on Slocan Lake bordering the town of New Denver. The property includes a 1,578-square-foot two-story main residence, two vacation rental cabins, a new studio office, an RV site (or future building site that has a septic system in place). The main home has two bedrooms and two bathrooms, a 26 x 12 covered deck, a wood stove, an open floor plan, vaulted ceilings on the main floor, and a lower level walk-out, updated custom cabinetry and Murphy bed for guests, plus an attached carport. The two cabins (Freya & Loki) are well separated from the main home and are perched nicely to take in the views of Slocan Lake, New Denver Glacier, and the Valhalla Mountain Range. The beautiful hand-crafted cabins are very private, wheelchair accessible, have wood stoves, full kitchens, washers/dryers, and internet, and have provided great rental income. There is also a 24 x 16 detached garage, a 10 x 16 shed, a wood shed, a hot tub, a large fenced raised garden, and a greenhouse with a built-in root cellar. This property has been lovingly landscaped and there are numerous gardens, pathways, patios, and private lawn areas throughout. The 275 feet of waterfront bordering Bigelow Bay Regional Park is great for swimming, paddle boarding, and all other summer activities. (id:27476)

Property Highlights

MLS® Number
10380230
Type
Single Family
Ownership Type
Freehold
Land Size
3.55 ac|1 - 5 acres
Parking Space Total
6

Building

Building Type
House
Storeys
2.00
Square Footage
1578 sqft
Bathrooms Total
2
Bedrooms Total
1
Exterior Finish
Wood
Fireplace Present
Yes
Basement Type
Basement Features
Building Heating Type
Baseboard heaters, In Floor Heating
Heating Fuel
Building Cooling Type

Utilities

Water
Well
Utility Sewer
Septic tank

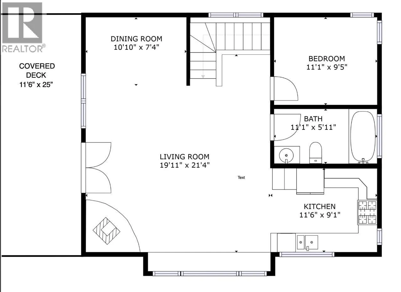
Room Layout

Utility room
Lower level
10'10'' x 5'6''
Laundry room
Lower level
6'1'' x 8'1''
Foyer
Lower level
4'5'' x 20'0''
4pc Bathroom
Lower level
16'2'' x 6'1''
Family room
Lower level
19'5'' x 21'3''
Dining nook
Main level
8'6'' x 10'
Dining room
Main level
11' x 13'10''
4pc Bathroom
Main level
11'5'' x 6'
Primary Bedroom
Main level
11'5'' x 9'9''
Kitchen
Main level
11'5'' x 9'
Living room
Main level
19'10'' x 13'11''

Location

Learn more about this property
Listing provided by:
Royal LePage Rosling Realty
MLS® number:
10380230
Agent:
Kevin Arcuri
*Indicates required field
Name is required
Email is required
Please enter a valid phone number (e.g., 416-111-1111).