1106 230 Keary Street, New Westminster, British Columbia V3L 0A6

Listed for:
$580,000
1 beds
1 baths
Listed 61 days ago
Apartment for rent: 1106 230 Keary Street, New Westminster, British Columbia V3L 0A6

View all 8 photos

Learn more about this property
Listing provided by:
Engel & Volkers Vancouver
MLS® number:
R3049594
Agent:
Amar Pal
*Indicates required field
Name is required
Email is required
Please enter a valid phone number (e.g., 416-111-1111).

About

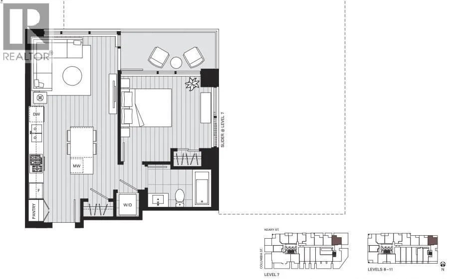
Water view, corner 1 bedroom under construction at The Keary in Sapperton's Brewery District. This assignment of contract is your opportunity to own in the sold out development which is the last phase in the Brewery District master plan and the highest quality finishes. This home sits on the top floor of the building podium section offering direct water views from the living room and bedroom and no interior unit above you. One of the most sought after floor plans in the development which sold out in just a few days. (id:27476)

Property Highlights

MLS® Number
R3049594
Type
Single Family
Maintenance Fee
320.97
Ownership Type
Strata
Parking Space Total
1

Building

Building Type
Apartment
Square Footage
541 sqft
Bathrooms Total
1
Bedrooms Total
1
Amenities
Exercise Centre, Guest Suite, Recreation Centre Shopping
Fireplace Present
No
Basement Type
Basement Features
Building Heating Type
Heat Pump
Heating Fuel
Building Cooling Type
Air Conditioned

Location

Street Spotlight - For sale